...
Sanierung und Erweiterung Psychiatrie Obwalden

Copyright: Sigrist Schweizer Architekten AG
Von der ursprünglichen spätklassizistischen Gestaltung und Gliederung der Fassade war vor Baubeginn nicht mehr viel übrig, denn das Gebäude mit Baujahr 1856 wurde in den 1970er Jahre purifiziert, die Seitenflügel aufgestockt und nordseitig mit einem Fluchttreppenhaus ergänzt. Mit der Ausbildung des 3. Obergeschosses zu einem Mansardengeschosse wurde die ursprüngliche Gebäudeproportion von Sockel, Fassade und Dach wiederhergestellt. Gegen Osten wird ein Erweiterungsbau erstellt. Dieser orientiert sich in der Fassadengestaltung und -gliederung am Bestand, wird jedoch auf den zweiten Blick als neues Element erkennbar. Im Innenbereich wurden vorgefundene Elemente aufgenommen und teilweise neu interpretiert. So entstand eine Umgebung, welche zeitgemässe Behandlungsangebote und Arbeitsplätze zulässt. Die Psychiatrie in Sarnen bietet je 20 stationäre und ambulante Plätze und beschäftigt rund 60 Mitarbeitende.












Copyright für die Fotografien: Ben Huggler Photography












Copyright für die Pläne / Schemata / Grafiken: Sigrist Schweizer Architekten AG
Texte Davos Kriterien (Selbstevaluation)
Gouvernanz
Das Gebäude der Psychiatrie Obwalden benötigte dringend eine Sanierung, da die letzten grösseren Eingriffe 1972 stattfanden. Ziel vom Kanton Obwalden als Eigentümerin war der Erhalt unter betrieblichen, ökonomischen und gestalterischen Aspekten des denkmalgeschützten Gebäudes sowie eine Vorbildfunktion diesbezüglich. Mit gezielten Massnahmen konnte das historische Gebäude erhalten und für die Zukunft gerüstet werden. Die Absicht war gleichzeitig die lups als langfristige Mieterin zu behalten.
Funktionalität
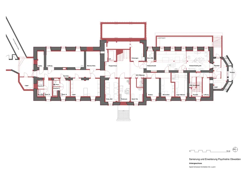
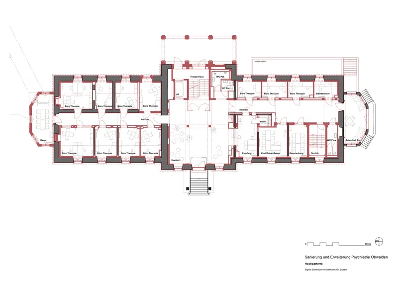
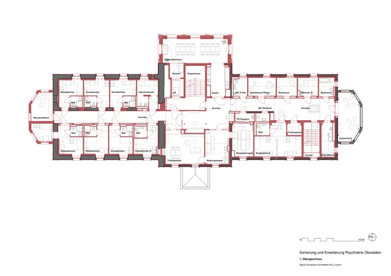
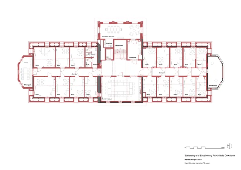
Der Erhalt der ursprünglich versetzten Korridore in den Seitenflügeln ermöglicht unterschiedliche Raumtiefen und Nutzungen. Mit der ostseitigen Erweiterung konnten grosszügige Räume geschaffen werden ohne in die bestehende Gebäudestruktur einzugreifen. Der ehemalige Estrich wurde durch die grossen Dachfenster mit konischen Leibungen nutz- und begehbar gemacht. Die unterschiedlichen bauzeitlichen Strukturen der jeweiligen Geschosse lassen eine optimale, geschossweise Nutzungsaufteilung zu.
Umwelt
Der sorgfältige Umgang mit dem Bestand ermöglichte eine weitgehende Erhaltung der Haupttragstrukturen sowie der Balkenlage. Beim Rückbau kam zudem alter Parkett zum Vorschein, welcher ausgebaut, aufbereitet und wieder eingebaut wurde. Über die bereits vor dem Umbau vorhandene Fernwärme wird das Minergie-zertifizierte Gebäude nach wie vor beheizt. Diverse Synergien werden zum angrenzenden Kantonsspital genutzt. Im Park wird auf eine grösstenteils einheimische Bepflanzung wert gelegt.
Wirtschaft
Durch den nutzungsspezifische Umbau konnte die Luzerner Psychiatrie weiterhin als langfristige Mieterin gewonnen werden und sichert somit die psychiatrische Versorgung im Kanton Obwalden. Der Nutzung entsprechend wurden langlebige, robuste und pflegeleichte Materialien gewählt, welche jedoch in keinem Wiederspruch zum denkmalgeschützten Gebäude stehen. Bei den Vergaben konnten viele Unternehmen aus der Region berücksichtigt werden.
Vielfalt
Aus betrieblichen Gründen wurde eine geschossweise Trennung der Nutzungen umgesetzt sowie auf den beiden Stationen die Grundrisse in einem Tages- und Nachtbetrieb organisiert. Ein Austausch zwischen stationären und ambulanten Patienten wie mit dem Personal fördert das soziale und räumliche Milieu und somit den Heilungsprozess. Dazu tragen diverse Aufenthaltsräume und Sitznischen bei. Rückzugsorten wird ebenfalls eine hohe Bedeutung beigemessen mit den privaten Zimmern oder den Ruheräumen.
Kontext
Die denkmalgeschützte heutige Psychiatrie Obwalden wurde ursprünglich als Armen-, Kranken-, und Strafanstalt (Bürgerheim) gebaut. Das 1856 eröffnete Gebäude bildet den Auftakt einer kontinuierlichen spitalgeschichtlichen Entwicklung an diesem Standort und ist somit soziologisch von hoher Bedeutung. Die Psychiatrie ist Teil des Ensembles mit historischen Bauten entlang der Brünigstrasse mit gewichtiger städtebaulicher Position (ISOS).
Genius Loci
Die Rekonstruktion der Fassade hilft der Wiedereingliederung der Psychiatrie in die Reihe von hochwertigen Bauten entlang der Brünigstrasse und schafft so eine hohe Identifikation mit dem Ort. Mit gezielten Eingriffen wird im Innern eine Korridor- und Spitalarchitektur umgangen und moderne Umgebung für die Patienten wie auch das Personal geschaffen. Unterschiedlichen Sichtbeziehungen helfen der Orientierung und ermöglichen Begegnungen.
Schönheit
Beim Rückbau kamen diverse Gestaltungselemente aus der Zeit vor der Purifizierung in den 70er Jahren zum Vorschein. Diese wurden nachgebildet (Türen und Sockel, Parkett) oder in abgewandelter, moderner Form wiederverwendet (Gliederung der Anstriche, Schablonenmalereien, Vergitterung Balkone). So wird eine wohlwollende Atmosphäre mit qualitativ hochwertigen Räumen geschaffen, welche zur Genesung beitragen sollen (Milieutherapie).
Eigenschaften
Ort
Brünigstrasse 183, 6060 Sarnen
Baukategorie (SIA 102)
Fürsorge und Gesundheit
Art der Aufgabe
Sanierung
Art des Verfahrens
Wettbewerb
Beschaffungsform
Offenes Verfahren
Baukosten in CHF (SIA 416)
22.08 Mio.
Geschossfläche in m² (SIA 416)
ø ca. 720
Planung
2020 → 2024
Fertigstellung
2023 → 2025
Inbetriebnahme
2025
Einreichende | Projektbeteiligte
Bauherrschaft
Bauherrschaft
Denkmalpflege
Baumanagement
Kosten- und Terminplanung
Andere
Bauingenieurwesen
Bauingenieurwesen
Elektroplanung
HLKS-Planung
HLKS-Planung
Landschaftsarchitektur
Andere
Bauphysik
Lichtplanung
Farbgestaltung
Fotografie