...
Mehrzweckhalle Hitzkirch

Copyright: Bild: © Roman Weyeneth
Der Neubau der Dreifach- und Mehrzweckhalle ergänzt das historisch gewachsene Schulareal von Hitzkirch. Die Platzierung entlang des Schulwegs stärkt die bestehende Nord-Süd-Achse, integriert die Grossform sensibel in das heterogene Umfeld aus Wohnbauten, Friedhof und Industriearchitektur und schafft klare, durchlässige Aussenräume.
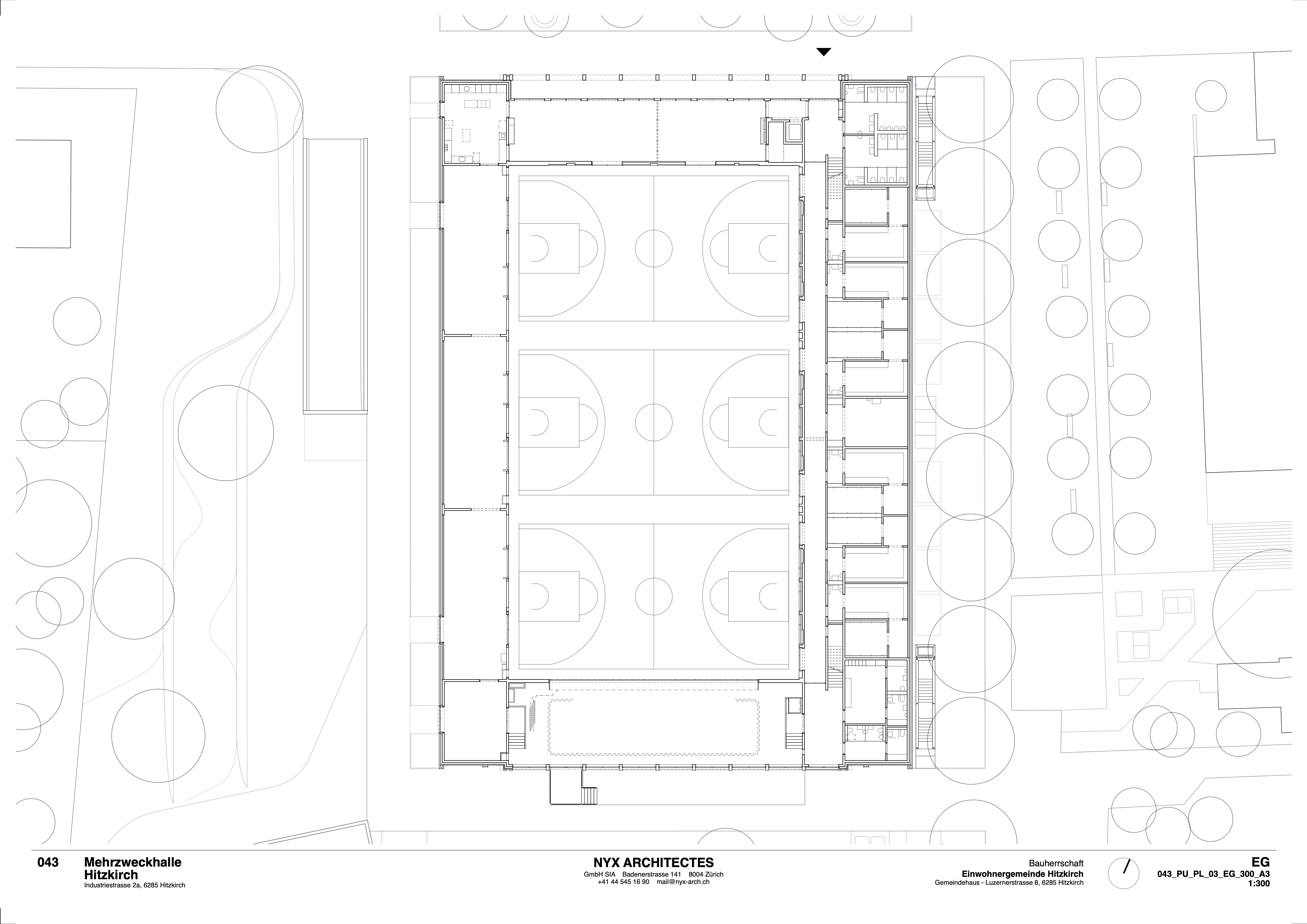
Die Halle ist ein identitätsstiftender Ort für Schule, Sport und Gemeinde. Zentrale Raumfolge: Foyer – Haupthalle – Bühne, flankiert von Annexbauten für dienende Funktionen. Die Haupthalle mit drei Spielfeldern und Zuschauergalerie bildet das räumliche Zentrum; Foyer und Bühne schaffen direkte Verbindungen zum Aussenraum und ermöglichen flexible Nutzung für Schulbetrieb, Vereinsbetrieb und kommunale Anlässe.
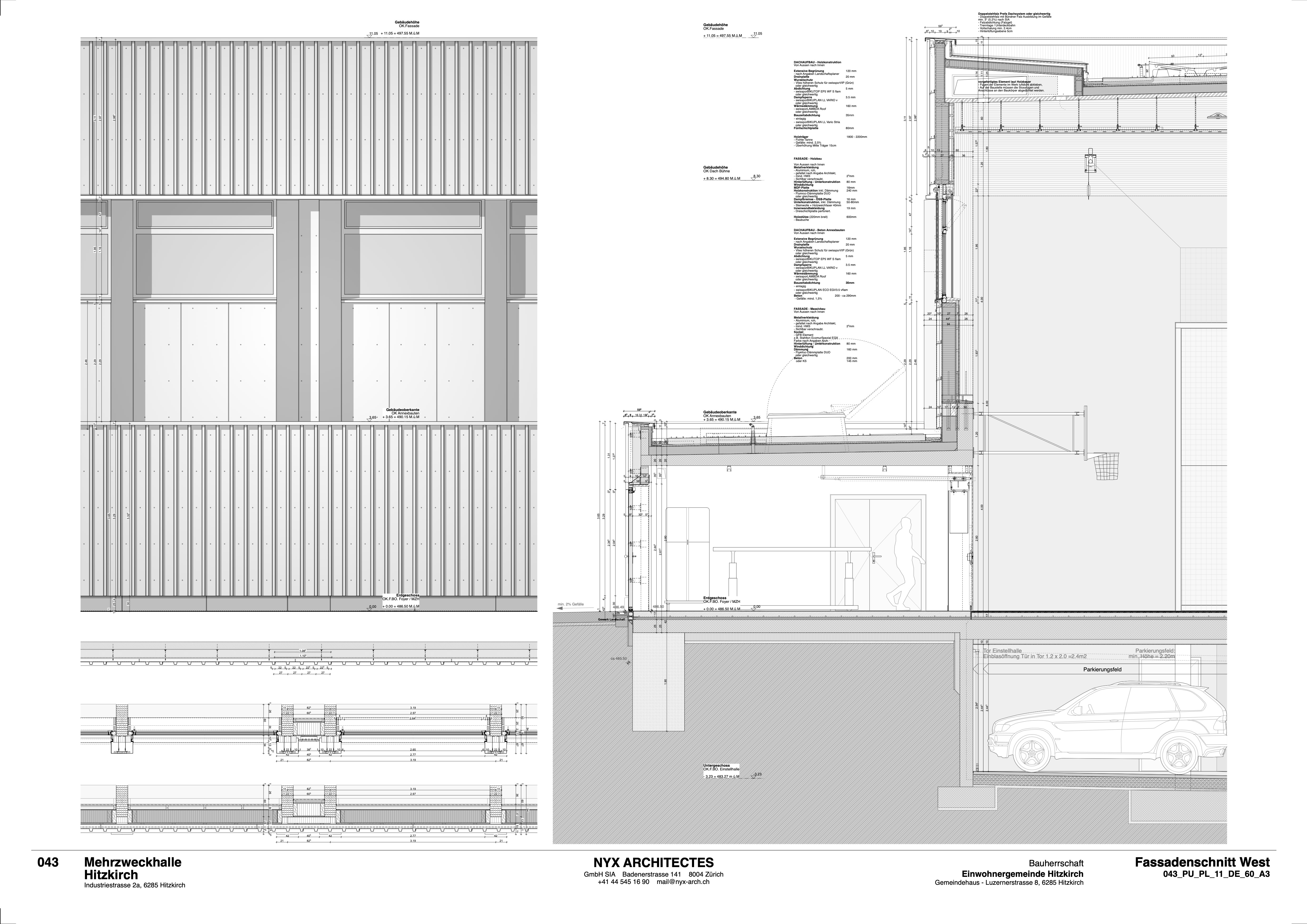
Die Tragstruktur aus Beton-Holz-Hybrid verbindet Robustheit, Leichtigkeit und Langlebigkeit. Betonwände tragen Sockel und Nebenräume, ein Holztragwerk überspannt stützenarm die Halle. Natürliche Belichtung, Sichtbeton, Holzoberflächen und geschliffene Böden erzeugen ein warmes, funktionales Ambiente.
Die hinterlüftete Metallfassade übersetzt die innere Ordnung nach aussen, reflektiert Licht und Vegetation, artikuliert die horizontale Gliederung und reagiert auf die heterogene Umgebung. Markisen bieten Sonnen- und Sichtschutz. Das Projekt vereint städtebauliche Klarheit, typologische Präzision, konstruktive Ehrlichkeit und nachhaltige Materialwahl. So entsteht ein multifunktionaler, langlebiger Ort, der Schule, Sport und kulturelle Begegnung für die Gemeinde Hitzkirch nachhaltig stärkt.
Die Halle ist ein identitätsstiftender Ort für Schule, Sport und Gemeinde. Zentrale Raumfolge: Foyer – Haupthalle – Bühne, flankiert von Annexbauten für dienende Funktionen. Die Haupthalle mit drei Spielfeldern und Zuschauergalerie bildet das räumliche Zentrum; Foyer und Bühne schaffen direkte Verbindungen zum Aussenraum und ermöglichen flexible Nutzung für Schulbetrieb, Vereinsbetrieb und kommunale Anlässe.
Die Tragstruktur aus Beton-Holz-Hybrid verbindet Robustheit, Leichtigkeit und Langlebigkeit. Betonwände tragen Sockel und Nebenräume, ein Holztragwerk überspannt stützenarm die Halle. Natürliche Belichtung, Sichtbeton, Holzoberflächen und geschliffene Böden erzeugen ein warmes, funktionales Ambiente.
Die hinterlüftete Metallfassade übersetzt die innere Ordnung nach aussen, reflektiert Licht und Vegetation, artikuliert die horizontale Gliederung und reagiert auf die heterogene Umgebung. Markisen bieten Sonnen- und Sichtschutz. Das Projekt vereint städtebauliche Klarheit, typologische Präzision, konstruktive Ehrlichkeit und nachhaltige Materialwahl. So entsteht ein multifunktionaler, langlebiger Ort, der Schule, Sport und kulturelle Begegnung für die Gemeinde Hitzkirch nachhaltig stärkt.












Copyright für die Fotografien: Bild: © Roman Weyeneth












Copyright für die Pläne / Schemata / Grafiken: © NYX ARCHITECTES
Texte Davos Kriterien (Selbstevaluation)
Gouvernanz
Der Neubau der Dreifach- und Mehrzweckhalle wurde von der Gemeinde Hitzkirch verantwortet. Das Projekt zeigt beispielhaft, wie öffentliche Bauvorhaben mit transparenter Planung, Bürgerbeteiligung und wiederholten Abstimmungen umgesetzt werden können. Die Bevölkerung wartete lange auf einen Festsaal; das Projekt stärkt Schule, Vereine und Gemeindeidentität nachhaltig.
Funktionalität
Die Halle ist flexibel nutzbar: Foyer, Haupthalle, Bühne und Annexbauten lassen sich für Schule, Sport, Kultur oder Grossanlässe kombinieren. Klare Raumabfolgen, intuitive Wegführung und flexible Trennwände ermöglichen gleichzeitige Nutzung unterschiedlicher Funktionen. Die Planung erlaubt Anpassungen an zukünftige Bedürfnisse und gewährleistet eine hohe Nutzungsdauer und Alltagstauglichkeit.
Umwelt
Die Halle wird in langlebiger Beton-Holz-Hybridbauweise erstellt, wodurch Ressourcen geschont und Wartung minimiert werden. Natürliche Belichtung reduziert Energieverbrauch, Materialien sind regional, robust und wiederverwertbar. Mit ihren Erdsonden bildet das Gebäude das Herz des Arealnetzes; PV-Anlage und Wärmespeicher sorgen für nachhaltige Energieversorgung. Fassaden und Lichtführung fördern Komfort und Wohlbefinden der Nutzer.
Wirtschaft
Trotz knapper Gemeindefinanzen wurde die Halle realisiert. Mehrere Optimierungsphasen, transparente Kostenplanung und wiederholte Kreditabstimmungen ermöglichten eine wirtschaftlich tragfähige Lösung. Das Projekt zeigt, dass Qualität, Multifunktionalität und städtebauliche Integration auch unter finanziellen Restriktionen erfolgreich umgesetzt werden können.
Vielfalt
Die Halle unterstützt eine breite Palette an Aktivitäten für Schule, Vereine, Kultur und Gemeinde. Unterschiedliche Raumgrössen, flexible Trennwände und direkte Aussenbezüge erlauben simultane Nutzung durch verschiedene Gruppen. So entsteht ein multifunktionaler Ort, der Begegnung, Austausch und generationenübergreifende Partizipation ermöglicht.
Kontext
Die Halle reagiert sensibel auf den heterogenen Kontext: Wohnhäuser, Friedhof und Industriearchitektur werden berücksichtigt. Die Staffelung und Ausrichtung entlang des Schulwegs klären die Raumtiefe des Areals, stärken die städtebauliche Achse und respektieren Nachbarschaften. Das Gebäude integriert sich in das historische Schulensemble und schafft zugleich einen markanten, zeitgemässen Bezugspunkt.
Genius Loci
Die Halle ist identitätsstiftend für Hitzkirch. Sie vermittelt zwischen historischer Schulbebauung, Friedhof und Industriearchitektur, öffnet sich zum Schulweg und Parkraum und erzeugt durch Materialwahl, Lichtführung und Raumabfolge eine einladende, atmosphärische Qualität. Die Halle wird so zum kulturellen wie sozialen Treffpunkt der Gemeinde.
Schönheit
Die klare, ruhige Architektursprache aus Beton, Holz und Metallfassade verbindet Eleganz mit Funktionalität. Staffelung, Materialkontraste und natürliche Belichtung erzeugen eine ausgewogene Wirkung, die Baukultur, Nachhaltigkeit und Nutzungsvielfalt vereint. Das Gebäude vermittelt Robustheit, Wärme und Identität zugleich, und stärkt die städtebauliche Präsenz im Schulareal.
Eigenschaften
Ort
Industriestrasse 2a, 6285 Hitzkirch
Baukategorie (SIA 102)
Freizeit, Sport und Erholung
Art der Aufgabe
Neubau
Art des Verfahrens
Wettbewerb
Beschaffungsform
Selektives Verfahren
Baukosten in CHF (SIA 416)
18'400'000.- BKP 1-9 ohne MWST
Geschossfläche in m² (SIA 416)
5'500
Planung
2020 → 2024
Fertigstellung
2025 → 2025
Inbetriebnahme
2025
Einreichende | Projektbeteiligte
Bauherrschaft
Baumanagement
Baumanagement
Kosten- und Terminplanung
Landschaftsarchitektur
Bauingenieurwesen
HLKS-Planung
Elektroplanung
Lichtplanung
Fassadenplanung
Verkehrsplanung
Bauphysik
Andere
Andere
Andere
Fotografie