...
Umbauten HPT

Copyright: ARGE BGP Architekten & Ghisleni Partner AG, Beat Bühler
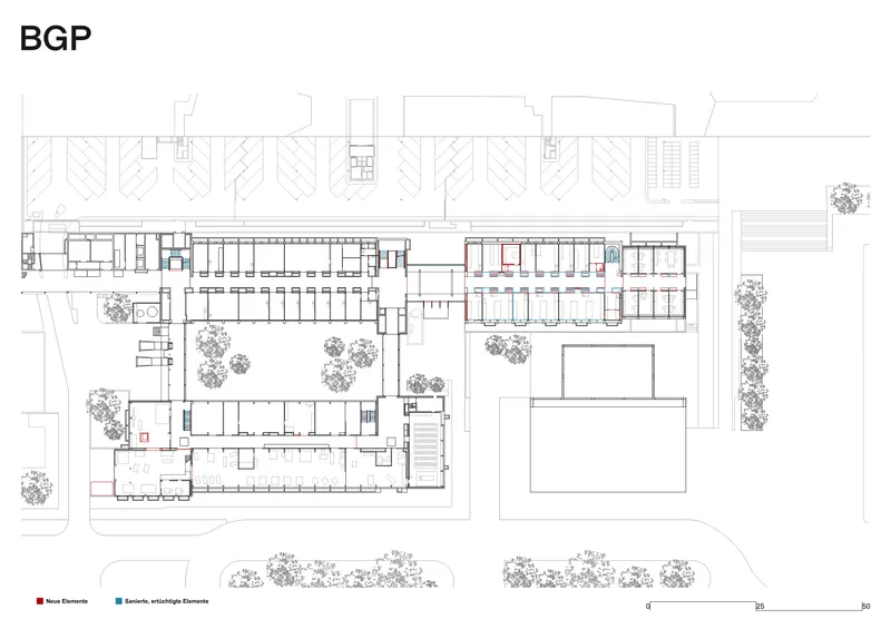
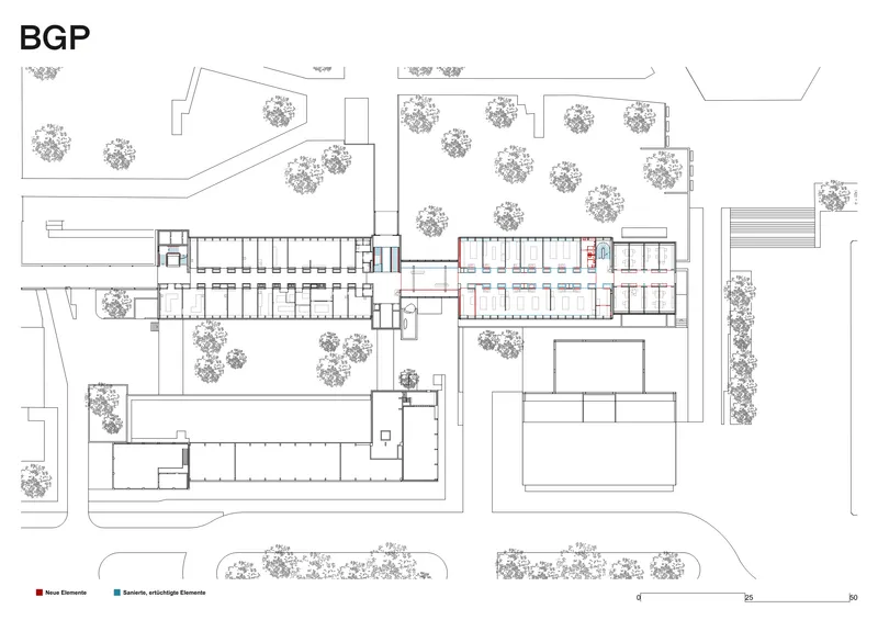
Der Gebäudekomplex HPT ist Teil eines der bedeutendsten Campusentwürfe der Schweizer Nachkriegsmoderne. A. H. Steiner entwickelte den Standort Hönggerberg als ein räumlich und konstruktiv klar gegliedertes Gefüge aus Bauten und Freiräumen. Das «Steinersche Skelett» – die Ordnung aus Raster, Achsen und markanten Treppenhauskuben, zwischen denen sich die Arbeitsräume aufspannen – bildet bis heute das räumliche Gerüst für Bewegung, Orientierung und Begegnung.
Die Sanierung setzt genau hier an, indem überformte Bauteile zurückgebaut, konstruktive Elemente wieder sichtbar und der Rhythmus der Tragstruktur erneut erfahrbar gemacht werden. Korridore und Treppenhäuser fügen sich wieder zu zusammenhängenden Raumfolgen, die Arbeits- und Begegnungsräume miteinander verbinden. Neue Anforderungen – von Hindernisfreiheit, Arbeitsschutz und moderner Laborinfrastruktur bis hin zu Brandschutz und Erdbebensicherheit – werden in die bestehende Struktur integriert: teils offen sichtbar in der Logik des Bestands, teils verdichtet in den Verteilebenen.
Die Eingriffe folgen keinem dogmatischen Prinzip, sondern einem differenzierten Umgang mit dem Bestand. Wiederherstellung, Weiterführung der «Steinerschen Idee» unter heutigen Anforderungen und die klare Abgrenzung neuer Elemente bilden ein Repertoire, das je nach Kontext eingesetzt wird. In den öffentlichen Bereichen tritt die architektonische Idee Steiners wieder klar hervor, in den Laboren erlaubt die robuste Struktur eine zeitgemässe Nutzung. So entsteht eine Sanierung, die den Bestand nicht nur bewahrt, sondern ihn als lebendigen Teil der Baukultur weiterentwickelt.
Die Sanierung setzt genau hier an, indem überformte Bauteile zurückgebaut, konstruktive Elemente wieder sichtbar und der Rhythmus der Tragstruktur erneut erfahrbar gemacht werden. Korridore und Treppenhäuser fügen sich wieder zu zusammenhängenden Raumfolgen, die Arbeits- und Begegnungsräume miteinander verbinden. Neue Anforderungen – von Hindernisfreiheit, Arbeitsschutz und moderner Laborinfrastruktur bis hin zu Brandschutz und Erdbebensicherheit – werden in die bestehende Struktur integriert: teils offen sichtbar in der Logik des Bestands, teils verdichtet in den Verteilebenen.
Die Eingriffe folgen keinem dogmatischen Prinzip, sondern einem differenzierten Umgang mit dem Bestand. Wiederherstellung, Weiterführung der «Steinerschen Idee» unter heutigen Anforderungen und die klare Abgrenzung neuer Elemente bilden ein Repertoire, das je nach Kontext eingesetzt wird. In den öffentlichen Bereichen tritt die architektonische Idee Steiners wieder klar hervor, in den Laboren erlaubt die robuste Struktur eine zeitgemässe Nutzung. So entsteht eine Sanierung, die den Bestand nicht nur bewahrt, sondern ihn als lebendigen Teil der Baukultur weiterentwickelt.












Copyright für die Fotografien: Beat Bühler








Copyright für die Pläne / Schemata / Grafiken: ARGE BGP Architekten & Ghisleni Partner AG
Texte Davos Kriterien (Selbstevaluation)
Gouvernanz
Die Sanierung des HPT entstand aus der Notwendigkeit, ein denkmalgeschütztes Gebäude nutzbar zu halten. Nach kritisch beurteilten früheren Eingriffen wurde ein begrenzter Sanierungsrahmen als Pilotprojekt definiert. In enger Abstimmung zwischen ETH Zürich, Denkmalpflege und Fachplaner:innen wurden Lösungen entwickelt, die heutige Anforderungen erfüllen und zugleich die «Steinersche Idee» respektieren und bei laufendem Betrieb umgesetzt wurden.
Funktionalität
Die von Steiner entwickelte 1,8-Meter-Raster- und Tragstruktur bildet ein dauerhaftes Gerüst, das Wandel ermöglicht. Moderne Laborinfrastruktur fügt sich selbstverständlich in diese Ordnung ein. Der Südtrakt wurde für die Pflanzenbiologie ausgebaut, während der Werkstatttrakt die Zusammenführung der zuvor verteilten Zentralwerkstatt des Departements Physik erlaubt und Arbeitsabläufe verbessert. Die barrierefreie Umsetzung nach SIA 500 stärkt Zugänglichkeit und Alltagstauglichkeit.
Umwelt
Der weitgehende Erhalt der bestehenden Bausubstanz verlängert den Lebenszyklus des Gebäudes und bewahrt graue Energie. Originale Kunststeinböden, Betonstrukturen und Bauteile wurden erhalten oder restauriert, Beleuchtung und Technik gezielt erneuert. Die landschaftliche Einbettung des HPT bleibt unverändert. Die Sanierung ist so angelegt, dass zukünftige Fassadenmassnahmen ohne Rückbauten der erneuerten Elemente möglich sind.
Wirtschaft
Die Sanierung folgt dem Prinzip der Angemessenheit: wiederherstellen, sinngemäss weiterführen, präzise ergänzen. Der situative Ansatz priorisiert langfristigen Wert und die Qualität des Gesamtgefüges gegenüber kurzfristiger Optimierung. Der entwickelte Leitfaden mit denkmalpflegerisch abgestimmten Lösungen für Türen, Leitungsführung und Farben reduziert den Planungs- und Bauaufwand künftiger Steiner-Sanierungen und trägt zum Werterhalt des Ensembles bei.
Vielfalt
Die verbesserte Barrierefreiheit erweitert die alltägliche Nutzbarkeit des denkmalgeschützten Gebäudes. Ergänzende Handläufe, schwellenfreie Übergänge, angepasste Beleuchtung und neu gestaltete Zwischenräume für Begegnung erleichtern das Miteinander, ohne den ursprünglichen Raumcharakter zu verändern. Die Vielfalt der Raumtypen – Labore, Werkstätten, Büros und Hörsaal – schafft zusammen mit der Zusammenführung mehrerer Institute ein gemeinsames Verständnis des HPT als kollektiver Arbeitsort.
Kontext
Als Teil der ersten Bauetappe prägt das HPT den Hönggerberg-Campus bis heute. Die Sanierung versteht sich als Weiterbauen in Steiners städtebaulichem Gefüge aus Achsen, Durchwegungen und landschaftlicher Einbettung. Massstab, Typologie und Materialität des Bestands bleiben oder werden wieder ablesbar. Durch die bewusste Beschränkung auf den Innenraum bleibt die äussere Erscheinung erhalten, während Ort und Innenräume in ihrer baukulturellen Kontinuität gestärkt werden.
Genius Loci
Die Sanierung macht die Identität des HPT wieder erfahrbar. Die auf den bauzeitlichen Zustand zurückgeführte Materialität lässt den konstruktiven Rhythmus spürbar werden. Der Rückbau überformter Elemente sowie neue Bauteile und Mobiliar, die der Steinerschen Logik folgen, geben dem Gebäude Orientierung, Klarheit und Charakter zurück. So entsteht eine Atmosphäre, die Erinnerung und heutige Nutzung verbindet und die Bindung an diesen Ort stärkt.
Schönheit
Das Projekt folgt Steiners Idee der formalen Einheit. Das Rechteck prägt als ordnendes Motiv Grundriss, Bauteile und Details. Neue Elemente wie Stahlhandläufe, Brüstungen und Türverglasungen greifen diese Logik auf und interpretieren sie zeitgemäss. Die recherchierte Farb- und Materialpalette mit rohen Oberflächen, Schattenschwarz und hellen Cremetönen schafft atmosphärische Kontinuität. Sichtbare Konstruktion, Patina und Zurückhaltung verleihen dem Ensemble eine ruhige, unaufgeregte Schönheit.
Eigenschaften
Ort
8093 Zürich
Baukategorie (SIA 102)
Unterricht, Bildung und Forschung
Art der Aufgabe
Umbau
Art des Verfahrens
Offerte
Baukosten in CHF (SIA 416)
36 Mio.
Geschossfläche in m² (SIA 416)
8’018 (Umbauperimeter)
Planung
2019 → 2025
Fertigstellung
2024 → 2025
Inbetriebnahme
2024
Einreichende | Projektbeteiligte
Bauherrschaft
Architektur
Baumanagement
Denkmalpflege
Bauingenieurwesen
Bauphysik
HLKS-Planung
HLKS-Planung
Andere
Andere
Andere
Andere
Fotografie