...
Rue du Rhône 3–5–7–9

Copyright: RDR architectes SA
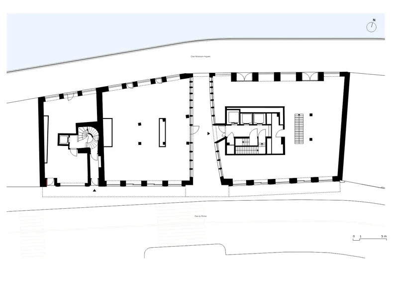
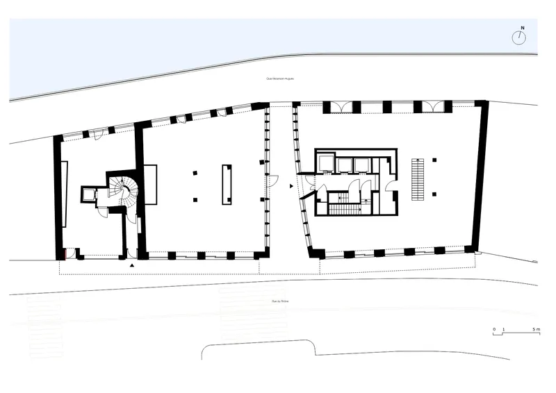
Situé dans les Rues-Basses de Genève, l’ensemble des immeubles Rue du Rhône 3–5–7–9 occupe une position urbaine exceptionnelle le long du Rhône, au sein du seul îlot historique non interrompu par une voirie. Inscrit dans le périmètre sensible du plan de site de la rade, le projet s’inscrit dans un contexte patrimonial riche, marqué par la stratification des époques, des usages et des formes bâties.
À l’issue du concours de 2015, l’intervention propose une approche différenciée, de la restauration à la transformation, selon la valeur et l’état des bâtiments. L’objectif n’est pas l’unification stylistique, mais la mise en valeur de la diversité historique de l’ensemble urbain.
Le bâtiment du n°3, XIXᵉ siècle, fait l’objet d’une rénovation-restauration respectueuse, préservant façades, communs et éléments structurels. Les intérieurs sont adaptés aux usages contemporains : bureaux, appartements existants et duplex dans les combles.
Les immeubles 5–7–9, fortement transformés dans les années 1970, bénéficient d’une requalification de leur enveloppe : les ajouts récents sont supprimés, une expression minérale contemporaine est restituée et la hiérarchie des niveaux – socle, corps principal, attique – est clarifiée en cohérence avec le contexte genevois. Le passage public du n°7 est redessiné, renforçant la continuité visuelle et fonctionnelle entre la rue et le fleuve.
Mené sur près de dix ans, le projet illustre une démarche pluridisciplinaire conciliant exigences patrimoniales, contraintes techniques et besoins contemporains, offrant une lecture renouvelée du lien entre architecture, espace public et paysage fluvial.
À l’issue du concours de 2015, l’intervention propose une approche différenciée, de la restauration à la transformation, selon la valeur et l’état des bâtiments. L’objectif n’est pas l’unification stylistique, mais la mise en valeur de la diversité historique de l’ensemble urbain.
Le bâtiment du n°3, XIXᵉ siècle, fait l’objet d’une rénovation-restauration respectueuse, préservant façades, communs et éléments structurels. Les intérieurs sont adaptés aux usages contemporains : bureaux, appartements existants et duplex dans les combles.
Les immeubles 5–7–9, fortement transformés dans les années 1970, bénéficient d’une requalification de leur enveloppe : les ajouts récents sont supprimés, une expression minérale contemporaine est restituée et la hiérarchie des niveaux – socle, corps principal, attique – est clarifiée en cohérence avec le contexte genevois. Le passage public du n°7 est redessiné, renforçant la continuité visuelle et fonctionnelle entre la rue et le fleuve.
Mené sur près de dix ans, le projet illustre une démarche pluridisciplinaire conciliant exigences patrimoniales, contraintes techniques et besoins contemporains, offrant une lecture renouvelée du lien entre architecture, espace public et paysage fluvial.









Copyright für die Fotografien: Hiris sàrl Sacha di Poi











Copyright für die Pläne / Schemata / Grafiken: RDR architectes SA
Texte Davos Kriterien (Selbstevaluation)
Gouvernanz
Le projet est le résultat d’un processus long et concerté en association de compétences d’architectes (projet et directeurs de travaux) associant maître d’ouvrage, autorités, services de protection du patrimoine, mandataires techniques. Cette gouvernance élargie a permis de faire émerger des solutions équilibrées entre conservation, transformation et usages contemporains, dans un cadre réglementaire exigeant.
Funktionalität
Les bâtiments ont été adaptés à des usages actuels tout en respectant leurs structures existantes. Les transformations intérieures, la mise en conformité et la clarification des circulations améliorent la flexibilité, le confort et la pérennité fonctionnelle de l’ensemble, sans altérer sa lecture historique.
Umwelt
La rénovation privilégie la conservation du bâti existant, limitant l’empreinte carbone liée à la construction. Le renouvellement des installations techniques, l’amélioration de l’enveloppe et la rationalisation des espaces contribuent à une performance énergétique accrue et à une utilisation durable des ressources.
Wirtschaft
L’intervention différenciée permet une allocation raisonnée des moyens, concentrant les investissements là où ils apportent une réelle valeur architecturale, fonctionnelle et patrimoniale. La durabilité constructive et l’adaptabilité des espaces garantissent une viabilité économique à l’exploitation et à long terme.
Vielfalt
Le projet assume la coexistence de bâtiments d’époques, d’échelles et d’expressions architecturales différentes. Cette diversité, loin d’être lissée, est mise en valeur comme une composante essentielle de l’identité des Rues-Basses et de la rade genevoise.
Kontext
Inscrit dans le plan de site de la rade, le projet respecte la structure parcellaire historique, la hiérarchie des façades et la relation singulière au Rhône. Il renforce le lien entre ville et fleuve, tant sur le plan spatial que de la perception visuelle.
Genius Loci
L’intervention s’appuie sur l’histoire de l’évolution du rapport de Genève au Rhône, en révélant ses qualités spécifiques : rapport direct à l’eau, passages publics, stratification des usages. Le projet prolonge l’esprit du lieu s’appuie sur les composantes qui en font la qualité, sans le figer.
Schönheit
La qualité architecturale réside dans la justesse des interventions, le soin apporté aux proportions, aux matériaux et aux détails, ainsi que dans l’équilibre entre conservation et expression contemporaine, offrant une lecture cohérente et sensible de l’ensemble bâti tendant à inscrire les interventions contemporaines dans une forme d’évidence.
Eigenschaften
Ort
Rue du Rhône 3-5-7-9, Genève
Baukategorie (SIA 102)
Handel und Verwaltung
Art der Aufgabe
Umbau
Art des Verfahrens
Wettbewerb
Beschaffungsform
Einladungsverfahren
Baukosten in CHF (SIA 416)
Geschossfläche in m² (SIA 416)
Planung
2016 → 2023
Fertigstellung
2020 → 2023
Inbetriebnahme
2023
Einreichende | Projektbeteiligte
Baumanagement
Bauphysik
Bauphysik
Geologie/Geotechnik
HLKS-Planung
Elektroplanung
Elektroplanung
Akropol Conseils Sàr
Andere
Fassadenplanung
BIFF SA
Akustikplanung