...
Neubau Bildungsgebäude Breiten

Copyright: Roland Bernath
Der Neubau Bildungsgebäude Breiten vereint die Kindergärten, Primarschulklassen und den Hort in einem Gebäude. Er liegt eingebettet im Wohnquartier und übernimmt die quartiersüblichen Gebäudehöhen. Durch seine Lage und kompakte Form zoniert der Neubau das Areal.
Südlich liegt der Frei- und Aussenraum für die Schulnutzungen, welcher Ankunft- und Orientierungsraum ist und mit unterschiedlichen Spielflächen und Infrastrukturen gestaltet ist. Durch die südliche Ausrichtung der Aussenräume wird eine hohe Qualität durch gute Besonnung gewährleistet. Der Aussenraum wird am Gebäude in Form einer Veranda mit Haupterschliessung in die Vertikale aufgenommen. Der Aussenraum mit der Veranda wird zur Adresse des Neubaus.
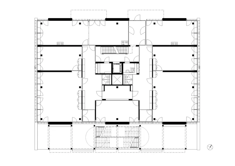
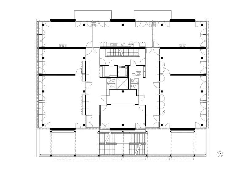
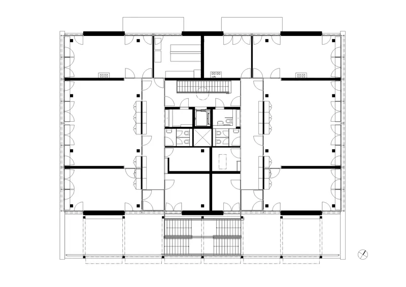
Die Kindergärten, Primarschulklassen und Horträume sind als Einzelklasseneinheiten organisiert. In den Untergeschossen liegen die Technikräume und Lager. Im Erdgeschoss und 1. Obergeschoss liegen vier typengleiche Einheiten mit Aussenbereich auf der Veranda als Zugang, Garderobe, Hauptraum, Gruppenraum und Nasszellen. Sie werden durch gemeinsam genutzte Bewegungsräume und Malateliers ergänzt. Im nördlichen Bereich liegen Sitzungszimmer, Lehrerzimmer und Spezialräume. Im 2. Obergeschoss liegt der Hort mit den Tagesstrukturen und einer Hortküche sowie eine Einzelklasseneinheit. Die Haupterschliessung in der Veranda wird durch ein Fluchttreppenhaus mit Lift in Grundrissmitte ergänzt.
Der standardisierte Grundriss mit gängigen Spannweiten, konventionellen Fluchtweglängen und einer durchgehenden Raumhöhe ist nutzungsoTen und systemgetrennt. Das primäre Stützen- Plattentragwerk ist hinsichtlich seines CO2-Abdrucks optimiert. Die Ausfachung mit Holzständerwände erlaubt eine zukünftige Flexibilität und eine Reduktion des CO2-Abdrucks.
Südlich liegt der Frei- und Aussenraum für die Schulnutzungen, welcher Ankunft- und Orientierungsraum ist und mit unterschiedlichen Spielflächen und Infrastrukturen gestaltet ist. Durch die südliche Ausrichtung der Aussenräume wird eine hohe Qualität durch gute Besonnung gewährleistet. Der Aussenraum wird am Gebäude in Form einer Veranda mit Haupterschliessung in die Vertikale aufgenommen. Der Aussenraum mit der Veranda wird zur Adresse des Neubaus.
Die Kindergärten, Primarschulklassen und Horträume sind als Einzelklasseneinheiten organisiert. In den Untergeschossen liegen die Technikräume und Lager. Im Erdgeschoss und 1. Obergeschoss liegen vier typengleiche Einheiten mit Aussenbereich auf der Veranda als Zugang, Garderobe, Hauptraum, Gruppenraum und Nasszellen. Sie werden durch gemeinsam genutzte Bewegungsräume und Malateliers ergänzt. Im nördlichen Bereich liegen Sitzungszimmer, Lehrerzimmer und Spezialräume. Im 2. Obergeschoss liegt der Hort mit den Tagesstrukturen und einer Hortküche sowie eine Einzelklasseneinheit. Die Haupterschliessung in der Veranda wird durch ein Fluchttreppenhaus mit Lift in Grundrissmitte ergänzt.
Der standardisierte Grundriss mit gängigen Spannweiten, konventionellen Fluchtweglängen und einer durchgehenden Raumhöhe ist nutzungsoTen und systemgetrennt. Das primäre Stützen- Plattentragwerk ist hinsichtlich seines CO2-Abdrucks optimiert. Die Ausfachung mit Holzständerwände erlaubt eine zukünftige Flexibilität und eine Reduktion des CO2-Abdrucks.









Copyright für die Fotografien: Roland Bernath








Copyright für die Pläne / Schemata / Grafiken: KUMMER/SCHIESS
Texte Davos Kriterien (Selbstevaluation)
Gouvernanz
Eine kompakte Setzung, quartiersverträgliche Höhen und klare Zonierung sichern langfristige Einbindung. Standardisierte, nutzungsoffene Grundrisse, systemgetrennte Konstruktion und CO₂-optimiertes Tragwerk ermöglichen Flexibilität, Anpassbarkeit und nachhaltige Bewirtschaftung über den gesamten Lebenszyklus.
Funktionalität
Alle Nutzungen von Kindergarten, Primarschule und Hort sind logisch gebündelt und effizient erschlossen. Typengleiche Klasseneinheiten mit direkten Aussenbezügen, gemeinschaftliche Bewegungs- und Spezialräume sowie eine zentrale, barrierefreie Erschliessung unterstützen einen flexiblen, alltagstauglichen Schulbetrieb.
Umwelt
Durch die kompakte Bauweise, südlich orientierte Aussenräume mit hoher Besonnungsqualität und ein CO₂-optimiertes Stützen-Plattentragwerk. Holzständerwände reduzieren den ökologischen Fussabdruck und ermöglichen Anpassungen im Lebenszyklus. Die nachhaltige Konstruktion unterstützt einen ressourcenschonenden Betrieb und langfristige Umweltverträglichkeit.
Wirtschaft
Standardisierte, typengleiche Grundrisse, konventionelle Spannweiten und optimierte Fluchtwegkonzepte ermöglichen eine kostenbewusste Realisierung. Die systemgetrennte Konstruktion und flexible Holzständerwände reduzieren langfristige Anpassungs- und Unterhaltskosten und sichern eine nachhaltige Investition über den gesamten Lebenszyklus.
Vielfalt
Die Vielfalt wird durch die Zusammenführung von Kindergarten, Primarschule und Hort in einem Gebäude gefördert. Unterschiedliche Raumtypen, flexibel nutzbare Klasseneinheiten sowie gemeinschaftliche Bewegungs- und Aussenräume ermöglichen vielfältige Lern-, Spiel- und Betreuungsformen und unterstützen eine inklusive Nutzung für verschiedene Altersgruppen und pädagogische Konzepte.
Kontext
Durch seine Setzung, kompakte Form und quartiersübliche Gebäudehöhen fügt sich das Gebäude sensibel in das Wohnumfeld ein. Die klare Zonierung des Areals und der südlich gelegene Aussenraum schaffen einen adressbildenden Ankunfts- und Orientierungsraum. Die Veranda verbindet Gebäude und Quartier und stärkt die Einbettung in den städtebaulichen Kontext.
Genius Loci
Die massstäbliche Einfügung, die klare Zonierung und der als Adresse ausgebildete Aussenraum mit Veranda stärken die Identität des Ortes. Der Neubau schafft einen prägnanten, gemeinschaftlichen Lern- und Begegnungsort mit eigenständigem, ortsbezogenem Ausdruck.
Schönheit
Der Neubau Bildungsgebäude Breiten entwickelt seine Schönheit aus Klarheit, Massstäblichkeit und Funktion. Die kompakte Form, die rhythmisierte Organisation der Klasseneinheiten und der adressbildende Aussenraum mit Veranda erzeugen eine ruhige, zeitlose Architektur. Die Verbindung von Struktur, Licht und Aussenraum schafft eine angenehme, identitätsstiftende Lernatmosphäre.
Eigenschaften
Ort
Affoltern am Albis
Baukategorie (SIA 102)
Unterricht, Bildung und Forschung
Art der Aufgabe
Neubau
Art des Verfahrens
Wettbewerb
Beschaffungsform
Selektives Verfahren
Baukosten in CHF (SIA 416)
11.9 Mio (BKP 1-9)
Geschossfläche in m² (SIA 416)
2'210 m2 GF
Planung
2022 → 2024
Fertigstellung
2023 → 2025
Inbetriebnahme
2025
Einreichende | Projektbeteiligte
Bauherrschaft
Stadt Affoltern am Albis
Baumanagement
Landschaftsarchitektur
Bauingenieurwesen
HLKS-Planung
HLKS-Planung
Elektroplanung
Bauphysik
Andere
Andere