...
LA FERME INVERSÉE Transformation d’une ferme à la Bruyère, Vuisternens-devant-Romont

Copyright: Willem PAB
LA FERME INVERSÉE
Transformation d’une ferme à la Bruyère, Vuisternens-devant-Romont
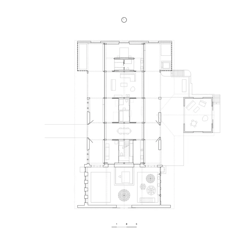
Le projet consiste en la transformation d’une ferme du XIXᵉ siècle, typique de la région, qui abrite sous un toit unique le logement et le rural. Privé d’usage agricole et situé hors zone à bâtir, ce volume aux dimensions exceptionnelles est aujourd’hui difficile à maintenir, au regard de la faible surface habitable autorisée. En ce sens, le programme mixte habitation / permaculture prévu par le maître d’ouvrage constitue une opportunité rare de requalification cohérente de l’ensemble.
La superficie de plain-pied du logement existant étant insuffisantes au besoin du propriétaire, le projet opère un renversement d’usage : le rural accueille la nouvelle habitation, tandis que le logis, situé plein sud, est entièrement vidé et transformé en serre dédiée à la permaculture. L’espace de la grange, demeurant disproportionné par rapport aux besoins de l’habitation, le partit pris consiste en l’implantation d’un volume isolé, en retrait de l’enveloppe existante. Les surfaces intermédiaires qui en résultent sont alternativement dédiées aux plantations et aux espaces extérieurs couverts de l’habitation.
Afin d’ancrer la nouvelle habitation dans la logique constructive du bâtiment, celle-ci se compose d’une grille structurelle en bois, implantée sur la trame de la charpente existante et complétée par des parois de bois et de verre.
Ce dispositif permet la reprise efficace des charges de la toiture tout en limitant le caractère exogène du nouveau volume.
L’organisation du plan reprend le rythme de la structure d’origine : les travées correspondant aux fourragères abritent les espaces majeurs qui bénéficient de double hauteur et d’espaces traversants, tandis que les segments coïncidant avec les anciennes écuries et remises sont subdivisés par des noyaux en brique de terre cuite accueillant les espaces servants. Des enfilades latérales connectent les différentes pièces, renforçant la percep
Transformation d’une ferme à la Bruyère, Vuisternens-devant-Romont
Le projet consiste en la transformation d’une ferme du XIXᵉ siècle, typique de la région, qui abrite sous un toit unique le logement et le rural. Privé d’usage agricole et situé hors zone à bâtir, ce volume aux dimensions exceptionnelles est aujourd’hui difficile à maintenir, au regard de la faible surface habitable autorisée. En ce sens, le programme mixte habitation / permaculture prévu par le maître d’ouvrage constitue une opportunité rare de requalification cohérente de l’ensemble.
La superficie de plain-pied du logement existant étant insuffisantes au besoin du propriétaire, le projet opère un renversement d’usage : le rural accueille la nouvelle habitation, tandis que le logis, situé plein sud, est entièrement vidé et transformé en serre dédiée à la permaculture. L’espace de la grange, demeurant disproportionné par rapport aux besoins de l’habitation, le partit pris consiste en l’implantation d’un volume isolé, en retrait de l’enveloppe existante. Les surfaces intermédiaires qui en résultent sont alternativement dédiées aux plantations et aux espaces extérieurs couverts de l’habitation.
Afin d’ancrer la nouvelle habitation dans la logique constructive du bâtiment, celle-ci se compose d’une grille structurelle en bois, implantée sur la trame de la charpente existante et complétée par des parois de bois et de verre.
Ce dispositif permet la reprise efficace des charges de la toiture tout en limitant le caractère exogène du nouveau volume.
L’organisation du plan reprend le rythme de la structure d’origine : les travées correspondant aux fourragères abritent les espaces majeurs qui bénéficient de double hauteur et d’espaces traversants, tandis que les segments coïncidant avec les anciennes écuries et remises sont subdivisés par des noyaux en brique de terre cuite accueillant les espaces servants. Des enfilades latérales connectent les différentes pièces, renforçant la percep












Copyright für die Fotografien: Willem PAB






Copyright für die Pläne / Schemata / Grafiken: BARD YERSIN architectes
Texte Davos Kriterien (Selbstevaluation)
Gouvernanz
Zu diesem Kriterium wurden keine Angaben gemacht.
Funktionalität
Le projet répond aux besoins contemporains d’habitation tout en respectant les limites du bâti existant. Le renversement d’usage optimise les surfaces autorisées et offre des espaces confortables, traversants et lumineux. La serre de permaculture et les espaces extérieurs couverts complètent l’habitat, favorisant bien-être, adaptabilité des usages et valorisation durable du patrimoine rural existant.
Umwelt
La transformation limite l’emprise au sol en réinvestissant un volume existant et en évitant toute nouvelle construction. L’intégration d’une serre productive, l’usage du bois et de la terre cuite, ainsi que la conservation de la charpente réduisent l’impact environnemental. Le projet récupère l’eau de pluie pour l’arrosage, utilise une pompe à chaleur géothermique et dispose d’une surface de panneaux solaires suffisante pour être quasi autonome énergétiquement.
Wirtschaft
Le projet privilégie la transformation plutôt que le remplacement, valorisant un bâti existant aux dimensions exceptionnelles. Les interventions ciblées, la structure bois et l’usage de matériaux durables garantissent une longévité constructive et des coûts maîtrisés. La mixité habitation–production agricole assure une viabilité économique à long terme, tout en renforçant la valeur patrimoniale et d’usage du bâtiment.
Vielfalt
La ferme inversée articule des usages complémentaires — habiter, cultiver, partager — au sein d’un même volume. Les espaces intermédiaires, entre intérieur et extérieur, favorisent les interactions, les pratiques collectives et une relation renouvelée au travail de la terre. Le projet propose une lecture contemporaine et inclusive de l’habitat rural, ouverte à l’évolution des modes de vie.
Kontext
Le projet s’inscrit dans la continuité typologique et constructive des fermes fribourgeoises du XIXᵉ siècle. La nouvelle habitation reprend la trame structurelle de la charpente existante et dialogue avec l’échelle, la matérialité et l’orientation du bâtiment. L’intervention contemporaine se distingue par sa clarté tout en respectant l’identité rurale et paysagère du site.
Genius Loci
En inversant les usages sans altérer l’essence du bâtiment, le projet renforce l’identité du lieu. La coexistence entre habitation, serre et espaces ouverts crée une relation sensible entre l’habitant, le bâti et le paysage agricole. La transformation révèle les qualités spatiales de la ferme et favorise un attachement durable, fondé sur l’usage, la mémoire et la production.
Schönheit
La beauté du projet naît de la justesse entre structure existante et intervention contemporaine. Les jeux de lumière, les doubles hauteurs et les enfilades révèlent la profondeur du volume agricole. L’expression sobre des matériaux — bois, verre, terre cuite — valorise la matérialité du lieu et offre une expérience spatiale à la fois lisible, sensible et apaisée.
Eigenschaften
Ort
Route de Romont 24, 1687 Vuisternens-devant-Romont
Baukategorie (SIA 102)
Wohnen
Art der Aufgabe
Umbau
Art des Verfahrens
Direktauftrag
Baukosten in CHF (SIA 416)
Geschossfläche in m² (SIA 416)
235
Planung
2021 → 2024
Fertigstellung
2024 → 2025
Inbetriebnahme
2025
Einreichende | Projektbeteiligte
Bauingenieurwesen
Daniel BARD