...
FORMES DU TEMPS Transformation de la laiterie de Romanens

Copyright: David BARD
FORMES DU TEMPS
Transformation de la laiterie de Romanens
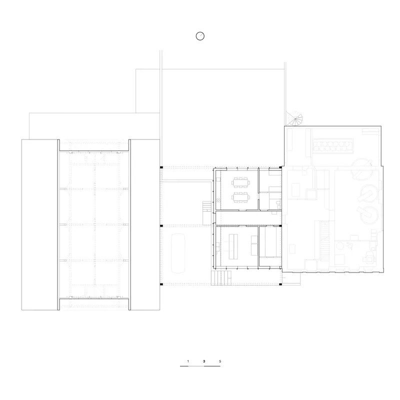
Avant sa transformation, la laiterie de Romanens se composait d’un assemblage hétéroclite de bâtiments et d’annexes. Deux formes fortes émergeaient de ce conglomérat : la laiterie originelle et l’ancienne porcherie. Dotées de certaines qualités architecturales, elles appartiennent toutes deux à des figures typologiques communes de la campagne fribourgeoise et représentatives de leurs époques respectives. Par analogie, le projet propose l’ajout d’un troisième pignon, également orienté dans le temps, dont l’architecture s’inspire des halles en bois lamellé-collé issues de la construction vernaculaire contemporaine.
Le projet se compose ainsi d’un toit soutenu par trois grandes poutres en bois lamellé-collé, permettant d’aménager librement les volumes qu’il abrite. On y retrouve un plateau, formé de l’agrandissement de la cave à fromage, qui accueille les nouvelles surfaces chauffées, tandis que la surface restante offre un espace de stationnement couvert, tout en servant de réserve pour d’éventuels agrandissements. Cette flexibilité se retrouve aussi dans la disposition intérieure : un couloir central relie la salle de fabrication à la zone de livraison, autorisant l’évolution indépendante des espaces latéraux. À l’est de cette circulation, face à l’espace public, on retrouve les pièces accessibles aux clients et aux producteurs, comme le magasin et la chambre froide tandis alors que les espaces à l’ouest accueillent les locaux dédiés aux personnels.
Habituellement, l’atmosphère des magasins de laiterie évoque les chalets d’alpage d’autrefois. À l’inverse, le projet s’inspire de l’univers aseptisé des espaces de fabrication, offrant aux consommateurs l’expérience authentique de la visite chez un producteur.
Transformation de la laiterie de Romanens
Avant sa transformation, la laiterie de Romanens se composait d’un assemblage hétéroclite de bâtiments et d’annexes. Deux formes fortes émergeaient de ce conglomérat : la laiterie originelle et l’ancienne porcherie. Dotées de certaines qualités architecturales, elles appartiennent toutes deux à des figures typologiques communes de la campagne fribourgeoise et représentatives de leurs époques respectives. Par analogie, le projet propose l’ajout d’un troisième pignon, également orienté dans le temps, dont l’architecture s’inspire des halles en bois lamellé-collé issues de la construction vernaculaire contemporaine.
Le projet se compose ainsi d’un toit soutenu par trois grandes poutres en bois lamellé-collé, permettant d’aménager librement les volumes qu’il abrite. On y retrouve un plateau, formé de l’agrandissement de la cave à fromage, qui accueille les nouvelles surfaces chauffées, tandis que la surface restante offre un espace de stationnement couvert, tout en servant de réserve pour d’éventuels agrandissements. Cette flexibilité se retrouve aussi dans la disposition intérieure : un couloir central relie la salle de fabrication à la zone de livraison, autorisant l’évolution indépendante des espaces latéraux. À l’est de cette circulation, face à l’espace public, on retrouve les pièces accessibles aux clients et aux producteurs, comme le magasin et la chambre froide tandis alors que les espaces à l’ouest accueillent les locaux dédiés aux personnels.
Habituellement, l’atmosphère des magasins de laiterie évoque les chalets d’alpage d’autrefois. À l’inverse, le projet s’inspire de l’univers aseptisé des espaces de fabrication, offrant aux consommateurs l’expérience authentique de la visite chez un producteur.







Copyright für die Fotografien: David BARD






Copyright für die Pläne / Schemata / Grafiken: BARD YERSIN architectes
Texte Davos Kriterien (Selbstevaluation)
Gouvernanz
Le projet est issu d’un processus de conception collaboratif associant agriculteur membre de la coopérative, laitier et architecte, fondé sur une lecture attentive du site et de ses usages. La transformation et l’extension de la laiterie privilégient des décisions spécifiques au lieu, valorisant les typologies existantes. Cette démarche est orientée vers la qualité architecturale et l’usage à long terme du bâtiment.
Funktionalität
L’organisation spatiale répond aux exigences fonctionnelles de la production laitière tout en garantissant hygiène, sécurité et clarté des parcours. Le couloir central permet une séparation lisible et évolutive entre espaces publics, zones de production et locaux du personnel. La structure libre sous toiture autorise des adaptations futures, assurant la durabilité fonctionnelle du bâtiment sans compromettre son identité.
Umwelt
Le projet privilégie la réutilisation et la valorisation des structures existantes, tout en assurant la durabilité des nouvelles structures mises en oeuvre par sa flexibilité distributive. Le recours au bois et l’usage limité du béton, s’inscrit dans une approche respectueuse de l’environnement tandis que la compacité des volumes contribuent à une exploitation énergétique rationnelle et durable.
Wirtschaft
La conservation des bâtiments existants et la rationalité constructive du nouveau volume permettent une économie de moyens et une maîtrise des coûts. La flexibilité des espaces garantit une adaptabilité aux évolutions futures de l’activité, prolongeant la durée de vie du bâtiment et limitant les investissement futurs. Le projet renforce ainsi la valeur économique et patrimoniale du site par un investissement durable et pertinent.
Vielfalt
La laiterie combine fonctions productives, commerciales et publiques au sein d’un même ensemble, favorisant la rencontre entre producteurs, employés et visiteurs. Cette mixité d’usages renforce le rôle social du bâtiment dans le village et contribue à une dynamique collective. Le projet participe à une culture du bâti inclusive, reliant activité économique et vie communautaire.
Kontext
L’intervention s’appuie sur les typologies rurales fribourgeoises existantes, tout en affirmant une écriture contemporaine lisible. Le nouveau pignon dialogue avec la laiterie historique et l’ancienne porcherie par son échelle, son orientation et sa matérialité. Cette continuité typologique assure une cohérence spatiale entre patrimoine bâti et architecture actuelle.
Genius Loci
Le projet renforce l’identité du site en révélant son caractère productif et artisanal. En s’inspirant de l’univers des espaces de fabrication plutôt que d’une image folklorique, il offre une expérience authentique aux visiteurs. Cette approche favorise l’attachement au lieu et valorise la culture locale liée à la production fromagère.
Schönheit
La beauté du projet réside dans la clarté de sa structure, la lisibilité de ses volumes et la sincérité de ses matériaux. L’architecture exprime la fonction productive du lieu tout en dialoguant avec le paysage rural. Cette esthétique sobre et contemporaine crée un rapport sensoriel juste entre bâtiment, usagers et contexte.
Eigenschaften
Ort
Route de Rueyres 3, 1626 Romanens
Baukategorie (SIA 102)
Industrie und Gewerbe
Art der Aufgabe
Umbau
Art des Verfahrens
Direktauftrag
Baukosten in CHF (SIA 416)
1’300’000
Geschossfläche in m² (SIA 416)
700
Planung
2019 → 2022
Fertigstellung
2022 → 2024
Inbetriebnahme
2024
Einreichende | Projektbeteiligte
Bauingenieurwesen
Daniel BARD