...
Jüdisches Museum der Schweiz

Copyright: Jüdisches Museum der Schweiz. Foto: Elena Ferragina
Das neue Jüdische Museum der Schweiz in Basel, realisiert von Diener & Diener Architekten, verbindet Architektur, Kunst, Geschichte und Ingenieurwesen zu einem Gesamtwerk. In der Transformation des denkmalgeschützten Tabakspeichers von 1852 verbinden Architektur, kuratorisches Denken und künstlerische Intervention sich zu einem Projekt, das einen zeitgemässen Museumsort schaffen sollte. Die Funktionalität des Gebäudes folgt einem klaren, flexiblen Raumkonzept: Ausstellungsflächen, Bildung, Veranstaltungen, Büros und Technik sind effizient organisiert und vertikal durch eine offene Holztreppe erschlossen. Mit dem Aufzug ermöglicht die Erschliessung die barrierefreie Nutzung. Die Ebenen des Museums fördern den Empfang und die Begegnung unterschiedlicher Besuchergruppen – von Schulklassen bis zu internationalen Gästen – gleichberechtigt angesprochen werden. Im Umgang mit Umwelt und Ressourcen setzt das Projekt auf Erhalt und Aktivierung der bestehenden Holzstruktur, energetische Verbesserung und materialgerechte Sanierung. Diese nachhaltige Haltung verbindet Wirtschaftlichkeit mit Respekt vor dem Bestand und reduziert bauliche Eingriffe auf das Wesentliche.
Der Kontext des Ortes – Vesalgasse, Hinterhof, Nähe zur frühen jüdischen Geschichte Basels – wird nicht überformt, sondern präzise weitergeschrieben. Die Westfassade wird durch das Holzrelief Jeziory von Frank Stella zu einer Bedeutungsschicht erweitert. Kunst und Bau treten in einen Dialog, der Erinnerung nicht illustriert, sondern erfahrbar macht. So entsteht ein Bau, der den Genius Loci aufnimmt und verstärkt: Das Museum wird Träger von Geschichte, Resonanzraum für jüdische Kultur und zugleich ein offener, zeitgenössischer Ort in der Stadt.
Der Kontext des Ortes – Vesalgasse, Hinterhof, Nähe zur frühen jüdischen Geschichte Basels – wird nicht überformt, sondern präzise weitergeschrieben. Die Westfassade wird durch das Holzrelief Jeziory von Frank Stella zu einer Bedeutungsschicht erweitert. Kunst und Bau treten in einen Dialog, der Erinnerung nicht illustriert, sondern erfahrbar macht. So entsteht ein Bau, der den Genius Loci aufnimmt und verstärkt: Das Museum wird Träger von Geschichte, Resonanzraum für jüdische Kultur und zugleich ein offener, zeitgenössischer Ort in der Stadt.


















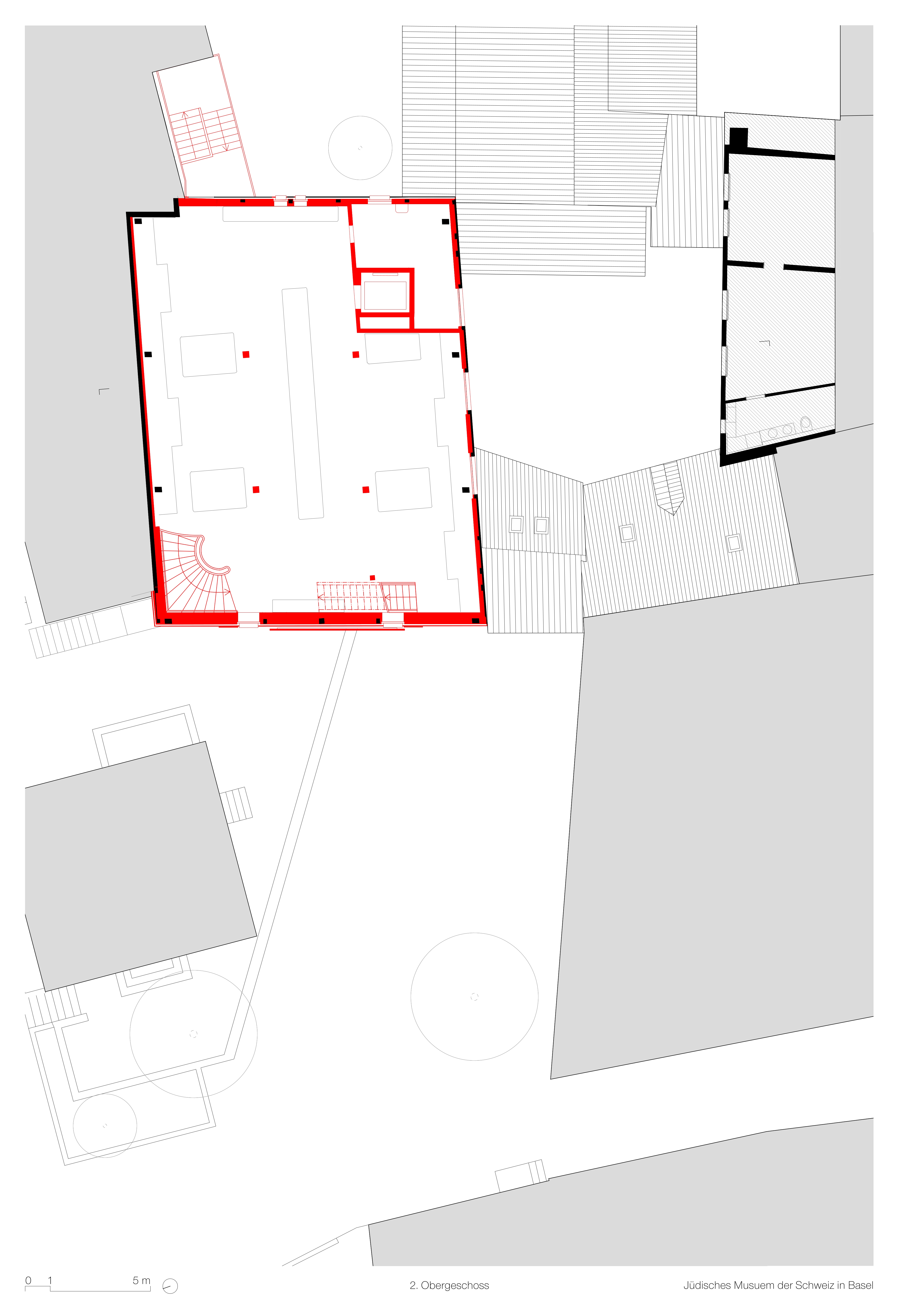
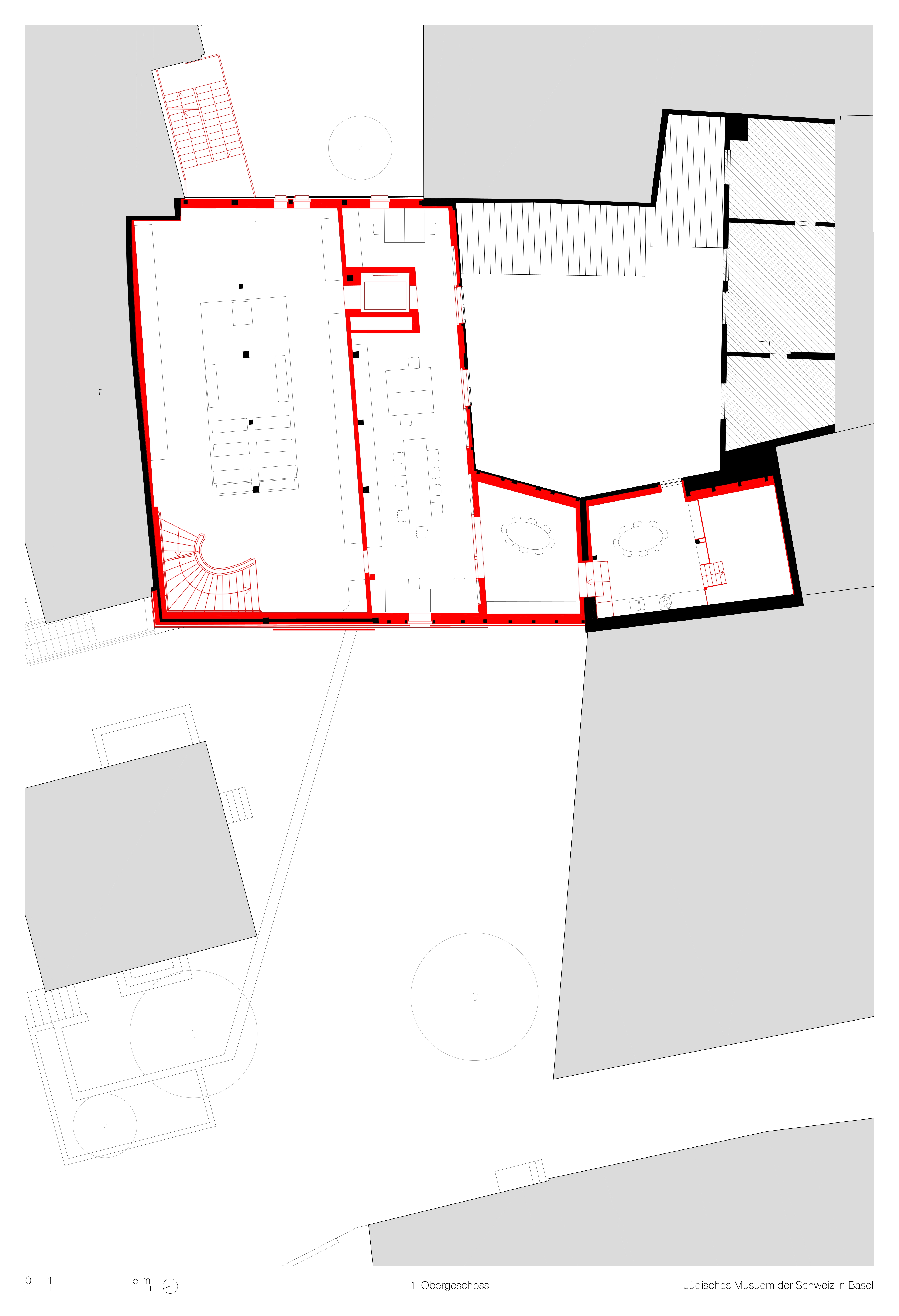
Copyright für die Pläne / Schemata / Grafiken: Diener & Diener Architekten
Texte Davos Kriterien (Selbstevaluation)
Gouvernanz
Die Sanierung und Umnutzung des Tabaklagers erfolgten im engen Dialog mit der Denkmalpflege. Substanzerhalt, Sicherheitsanforderungen, Tragwerk, Haustechnik und Belichtung wurden sorgfältig miteinander abgewogen. Die klosterzeitliche und historische Bausubstanz blieb erhalten und konserviert. Die Ost- und Westfassade orientieren sich an der historischen Lochfassade, neue Öffnungen wurden weitgehend vermieden. Holzläden und Spezialfolien dienen als Sonnenschutz zur Reduktion von Wärmeimmissionen.
Funktionalität
Bei der Wiederbelebung des historischen Tabakmagazins mussten Denkmalschutz, Sicherheit, Zugänglichkeit und Nachhaltigkeit in Einklang gebracht werden. Rund 750 m² wurden in Ausstellungs und Veranstaltungsräume, Arbeitsbereiche und eine Lüftungszentrale im Dach kompakt gegliedert. Der mehrgeschossige Ausstellungsraum mit geschwungener Holztreppe bildet das ‘Herz’ des Museums und schafft trotz begrenzter Fläche optimale Sichtbarkeit der Exponate.
Umwelt
Die nachhaltige Qualität des Projekts beginnt mit der behutsamen Umnutzung des seit langem zweckentfremdeten Tabakmagazins und seines Umraums zu einem öffentlichen Museum mit Platz. Die ruhigeren Höfe werden als geschützt, während sich das öffentliche Programm auf dem Vorplatz, dem ehemaligen Parkplatz, konzentriert. Ein bestehender Fernwärmeanschluss ist für das Museum erweitert worden und bildet mit der intelligent gesteuerten Haustechnik eine resourcen- und energieschonende Einheit.
Wirtschaft
Zum Ausgangspunkt gehörten eine undichte Hülle, fehlende Dämmung ungenügende Erschliessung des ehemaligen Tabakmagazins. Ausser der Wahl hochwertiger, langlebiger Baumaterialien, sparsamer Energiequellen, selbstregulierender Technik wurde bis ins Detail ressourcenschonend gearbeitet, um den Lebenszyklus des Altbaus für die Zukunft auszubauen. Der kulturelle Wert des Standorts wurde gesteigert.
Vielfalt
Die Öffnung des Tabaklagers als historischer Ort für die Kultursammlung des Museums und das Publikum, fördert eine inklusive Gesellschaft. Das Projekt ist auch in seiner Entstehung ein Beispiel von einem Dialog, der vom Engagement der Bauherrschaft, der Nachbarschaft und aller Beteiligten. Architekten, Ingenieure, Szenografen, Eigentümer und Behörden getragen wurde, die gemeinsam Verantwortung übernahmen, ein historisches Gut zu bewahren.
Kontext
Mit der integrierten Kunst Jeziory tritt die Fassade aus einem stummen Kontext heraus in einen sprechenden Kontext. Das Relief thematisiert insbesondere die Kultur der Holzbauweise, die im Zusammenhang mit dem Bestand, als auch den zerstörten Synagogen eigen ist. Die frühere Anlieferungszone wird als Museumsplatz wahrnehmbar. Dem zuvor banalen Aussenraum wird eine zeitgenössische und historisch reflektierte baukulturelle Qualität gegeben, die den Exponaten im Aussenraum Sichtbarkeit verleiht.
Genius Loci
Die Fassade mit dem Relief oszilliert zwischen Oberfläche und Tiefe, Farbe und Form, Heute und Geschichte, individueller und stadt- und jüdischgeschichtlicher Bedeutung. Mit Frank Stellas Intervention hat die Fassade eine besondere Eigenschaft der Kunst: die emotionale Reaktion des Betrachtenden zu begünstigen und dadurch einen positiven Bezug zum bestehenden Ort herzustellen.
Schönheit
An der Vesalgasse zeigt sich kein neutraler Raum, sondern ein erfahrbarer Träger von Bedeutung. Das Museum vermittelt historische Schichten über Materialität, Massstab, Licht und Kunst. Die offene Holztreppe verbindet Geschosse funktional und sinnlich, das Kunstwerk schafft einen Resonanzraum zwischen Wahrnehmung, Erinnerung und Stadt. Besucherinnen bewegen sich durch einen als Körper erfahrbaren Bau, der Nähe und Distanz zugleich zulässt und Architektur als Medium von Beziehung erlebbar macht.
Eigenschaften
Ort
Vesalgasse 5, 4051 Basel
Baukategorie (SIA 102)
Kultur und Geselligkeit
Art der Aufgabe
Umbau
Art des Verfahrens
Direktauftrag
Baukosten in CHF (SIA 416)
Keine Angabe
Geschossfläche in m² (SIA 416)
890
Planung
2022 → 2024
Fertigstellung
2024 → 2025
Inbetriebnahme
2025
Einreichende | Projektbeteiligte
Bauherrschaft
Andere
Adam Szymczyk - Kurrator Kunst und Bau
Kunst am Bau
Frank Stella - Künstler
Baumanagement
Innenarchitektur
Bauingenieurwesen
HLKS-Planung
HLKS-Planung
Elektroplanung
Bauphysik
Andere
Lichtplanung
Andere
Andere
Andere
Andere
Andere
Roland von Gunten - Farben / Kunstwerk