...
Umbau & Aufstockung Mehrfamilienhaus, Basel

Copyright: FURKA Architektur GmbH / Bilder: Noriaki Fujishige
Das Mehrfamilienhaus liegt am Rande des beliebten Stadtviertels Neubad, das durch einen hohen Anteil an Reiheneinfamilienhäusern geprägt ist. Bereits zur Gründerzeit war das Neubad ein Nebenzentrum der Stadt Basel und ist heute ein familienfreundliches Quartier.
Die Eigentümerin der Liegenschaft, die Basler Wohngenossenschaft, besitzt zahlreiche Wohnhäuser aus der Vorkriegszeit in Basel. Das im Jahr 1929 errichtete Mehrfamilienhaus stand vor einer Kernsanierung. Im Dialog mit der Eigentümerin entwickeln die Architekten ein nachhaltiges Konzept für das Sanierungs- und Umbauprojekt. Dabei nutzen sie das Potenzial einer Aufstockung, um zusätzlichen Wohnraum für Familien zu schaffen.
Am stark befahrenen Morgartenring ist die Aussenlärmbelastung so hoch, dass der Immissionsgrenzwert an der Strassenfassade überschritten wird.
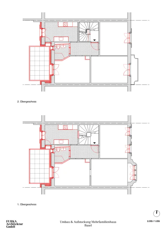
In der Aufstockung befindet sich eine Maisonette-Wohnung mit fünf Zimmern. Es ist eine grosse Herausforderung, ein Raumkonzept zu entwickeln, das trotz der Lärmsituation eine hohe Wohnqualität und Behaglichkeit gewährleistet. Alle Schlafräume sind hofseitig angeordnet. Das Wohnzimmer mit Galerie stellt die einzige lärmschutztechnische Ausnahme dar und wird zwischen den Brandmauern parallel zur Strasse eingespannt. Der daraus entstandene, überhöhte Hauptaufenthaltsraum schafft die für eine kostengünstige Wohnung ungewöhnliche Grosszügigkeit. Das Erkerfenster bietet einen urbanen Ausblick über die Allee und bildet das Herzstück der Wohnung. Auf der Hofseite befindet sich zudem eine Dachterrasse, die einen Panoramablick auf die umliegenden Einfamilienhäuser ermöglicht. Hier geniesst man die Abendsonne.
In den drei bestehenden 3-Zimmer-Wohnungen wurden die Küchen erneuert, die Bäder vergrössert und die Balkone erweitert. Zudem wurde die gesamte Haustechnik erneuert und alle Fenster sowie die Hoffassade energetisch und lärmschutztechnisch saniert.
Die Eigentümerin der Liegenschaft, die Basler Wohngenossenschaft, besitzt zahlreiche Wohnhäuser aus der Vorkriegszeit in Basel. Das im Jahr 1929 errichtete Mehrfamilienhaus stand vor einer Kernsanierung. Im Dialog mit der Eigentümerin entwickeln die Architekten ein nachhaltiges Konzept für das Sanierungs- und Umbauprojekt. Dabei nutzen sie das Potenzial einer Aufstockung, um zusätzlichen Wohnraum für Familien zu schaffen.
Am stark befahrenen Morgartenring ist die Aussenlärmbelastung so hoch, dass der Immissionsgrenzwert an der Strassenfassade überschritten wird.
In der Aufstockung befindet sich eine Maisonette-Wohnung mit fünf Zimmern. Es ist eine grosse Herausforderung, ein Raumkonzept zu entwickeln, das trotz der Lärmsituation eine hohe Wohnqualität und Behaglichkeit gewährleistet. Alle Schlafräume sind hofseitig angeordnet. Das Wohnzimmer mit Galerie stellt die einzige lärmschutztechnische Ausnahme dar und wird zwischen den Brandmauern parallel zur Strasse eingespannt. Der daraus entstandene, überhöhte Hauptaufenthaltsraum schafft die für eine kostengünstige Wohnung ungewöhnliche Grosszügigkeit. Das Erkerfenster bietet einen urbanen Ausblick über die Allee und bildet das Herzstück der Wohnung. Auf der Hofseite befindet sich zudem eine Dachterrasse, die einen Panoramablick auf die umliegenden Einfamilienhäuser ermöglicht. Hier geniesst man die Abendsonne.
In den drei bestehenden 3-Zimmer-Wohnungen wurden die Küchen erneuert, die Bäder vergrössert und die Balkone erweitert. Zudem wurde die gesamte Haustechnik erneuert und alle Fenster sowie die Hoffassade energetisch und lärmschutztechnisch saniert.




















Texte Davos Kriterien (Selbstevaluation)
Gouvernanz
Die Basler Wohngenossenschaft ist eine der ältesten Genossenschaften der Schweiz. Sie besitzt 60 Wohngebäude mit insgesamt 505 Wohnungen in Basel und Baselland. Die Wohnungen in Basel sind überwiegend kleine Altbauwohnungen. Im Rahmen ihrer Energie- und Wachstumsstrategie hat sich die Genossenschaft nach einem Dialog mit Architekten dazu entschieden, das sanierungsbedürftige Mehrfamilienhaus aus dem Jahr 1929 am Morgartenring für Familien nachzuverdichten.
Funktionalität
Die Zimmer der bestehenden Wohnungen sind so gross und gut proportioniert, dass sie den heutigen qualitativen Ansprüchen ohne Probleme gerecht werden. Im Rahmen der Kernsanierung im Bestand werden lediglich die nötigen Bereiche wie Bäder, Küchen, Balkone sowie Haustechnik erneuert oder vergrössert. Die neue Wohnung ist für eine vier- bis fünfköpfige Familie ausgelegt. Neben der Erfüllung zweckorientierter Bedürfnisse bietet sie eine für eine kostengünstige Wohnung untypische Grosszügigkeit.
Umwelt
Im Jahr 2023 beschloss die Basler Wohngenossenschaft eine Energiestrategie, die die energetische Sanierung und Dekarbonisierung all ihrer Liegenschaften bis zum Jahr 2050 vorsieht.
Die bestehende Bausubstanz ist gut erhalten. Ein Ersatzneubau kommt daher aus ökologischer und ökonomischer Sicht nicht infrage. Das Haus wird um zwei Geschosse, primär in Holzbauweise, aufgestockt. Die Wärmeerzeugung wird durch eine Luft-Wasser-Wärmepumpe ersetzt. Eine PV-Anlage ergänzt das Heizsystem.
Die bestehende Bausubstanz ist gut erhalten. Ein Ersatzneubau kommt daher aus ökologischer und ökonomischer Sicht nicht infrage. Das Haus wird um zwei Geschosse, primär in Holzbauweise, aufgestockt. Die Wärmeerzeugung wird durch eine Luft-Wasser-Wärmepumpe ersetzt. Eine PV-Anlage ergänzt das Heizsystem.
Wirtschaft
Die effiziente Bauökonomie des Projekts basiert auf der Grundentscheidung, auf die Komfortabilität eines Ersatzneubaus zu verzichten und stattdessen auf die Qualität des Bestands zu setzen. Die Genossenschaft hat klare Kostenmieten zum Ziel. Dieses Ziel wird ohne Verzicht auf Wohnqualität, Dauerhaftigkeit und Ökologie des Baus erreicht. So können, trotz des komplexen Umbaus, alle Wohnungen nach der Fertigstellung deutlich unter dem Mietpreisraster der Stadt Basel vermietet werden.
Vielfalt
Trotz der überschaubaren Grösse hat dieses kostengünstig umgesetzte Wohnbauprojekt eine klare soziale Bedeutung und stärkt die Position der Genossenschaft im Immobilienmarkt. Da sich die gesellschaftliche Schere in rasantem Tempo öffnet und die Immobilienpreise in der Schweiz stetig weiter steigen, wächst die Nachfrage nach qualitativem und bezahlbarem Wohnraum. Als Mehrfamilienhaus mit lediglich vier Parteien ist ein intimer Rahmen gegeben, der soziale Kontakte unter den Nachbarn begünstigt.
Kontext
Das Neubad-Quartier wurde in der Gründerzeit als Nebenviertel entwickelt und ist bis heute von der für diese Epoche typischen Architektur geprägt. Auch die Häuserzeile, in der sich das Projekt befindet, stammt aus dieser Zeit. Im Projekt wird ein achtsamer Umgang mit dem Bestand gepflegt. Dabei wird eine Balance zwischen der Charakteristik der vorhandenen Häuserzeile und der Aufstockung in heutiger Formsache geschaffen.
Genius Loci
Das Projekt greift die für Brockrandhäuser typische Fassadengestaltung auf. Die Strassenfassade ist repräsentativ gestaltet, die seitlichen Grenzmauern dienen dem Brandschutz und die Hoffassade mit ihren zweckdienlichen Fensteröffnungen stellt die wirtschaftliche Rückseite dar. Als einzige Aufstockung der Zeile präsentiert das Haus mit dem grossen Erkerfenster die Nachverdichtung in progressiver Manier und ist ein neuer Leuchtturm an der Ringstrasse.
Schönheit
Das Fassadenthema der asymmetrischen Betonung der Risalite wird im Projekt in adaptierter Form mit einem Erker weitergeführt. Das Haus erhält zur Strasse hin neu einen satten, rötlichen Anstrich und fügt sich somit in die farbenfrohe Häuserreihe ein. Die bestehende Fassadenphysiognomie bleibt unverändert. Der grobe Kellenwurfputz bildet einen textuellen Kontrast zum bestehenden Zementputz und setzt zugleich einen dezenten Akzent in der Fassadengliederung.
Eigenschaften
Ort
Morgartenring 130, 4054 Basel
Baukategorie (SIA 102)
Wohnen
Art der Aufgabe
Erweiterung
Art des Verfahrens
Direktauftrag
Baukosten in CHF (SIA 416)
1.83 Mio.
Geschossfläche in m² (SIA 416)
425m2
Planung
2023 → 2025
Fertigstellung
2024 → 2025
Inbetriebnahme
2025
Einreichende | Projektbeteiligte
Bauherrschaft
Bauingenieurwesen
Bauingenieurwesen
HLKS-Planung