...
Vision 2030 Kreislauffähige Stadionbaute

Copyright: Kocher Minder Architekten
Mit der Vision 2030 entwickelt der FC Lerchenfeld gemeinsam mit der Stadt Thun, Kocher Minder Architekten, Fachplanenden und zahlreichen Projektpartnern eine zukunftsweisende Stadionbaute für den lokalen Breiten- und Nachwuchssport. Die Transformation der sanierungsbedürftigen Anlagen aus den 1970er- und 1980er-Jahren folgt einem konsequent prozessorientierten Ansatz: Nicht allein das fertige Gebäude, sondern der Weg dorthin – geprägt von Partizipation, Wiederverwendung und gemeinschaftlichem Engagement – bildet den Kern des Projekts.
Bereits in frühen Projektphase wurden ökologische, soziale und ökonomische Ziele gleichermassen definiert. Bauteilbörsen, systematische Rückbauten, Materialinventare und kurze Transportwege steuern die Suche nach wiederverwendbaren Konstruktionselementen. Vereinsmitglieder leisten Fronarbeit, übernehmen Demontage- und Aufbereitungsarbeiten und eignen sich das Gebäude im Entstehungsprozess an. So wird Kreislaufwirtschaft nicht nur technisch umgesetzt, sondern als kollektiver Lernprozess verankert.
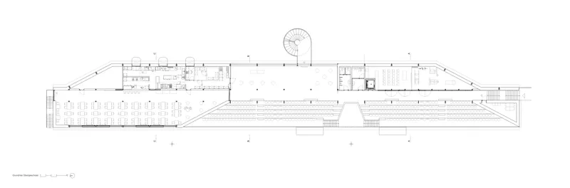
Architektonisch entwickelt sich der schlanke Holzbau aus der bestehenden Tribüne. Das semitransparente Photovoltaikdach überspannt die Anlage als energetischer Motor und versorgt über Speicher und Wärmepumpe sowohl den Betrieb als auch die neuen E-Mobilitäts-Möglichkeiten. Das klar organisierte Raumprogramm mit Tribüne, Gastronomie, Garderoben und Trainingsräumen verbindet Funktionalität mit robuster Materialisierung und langfristiger Anpassungsfähigkeit.
Als Fussballcampus im Lerchenfeldquartier wird die neue Waldeck zu einem öffentlichen Begegnungsort mit Vorbildcharakter. Vision 2030 steht exemplarisch für eine neue Generation von Sportinfrastruktur, die ökologische Verantwortung, soziale Teilhabe und wirtschaftliche Tragfähigkeit durch einen innovativen Planungs- und Bauprozess vereint.
Bereits in frühen Projektphase wurden ökologische, soziale und ökonomische Ziele gleichermassen definiert. Bauteilbörsen, systematische Rückbauten, Materialinventare und kurze Transportwege steuern die Suche nach wiederverwendbaren Konstruktionselementen. Vereinsmitglieder leisten Fronarbeit, übernehmen Demontage- und Aufbereitungsarbeiten und eignen sich das Gebäude im Entstehungsprozess an. So wird Kreislaufwirtschaft nicht nur technisch umgesetzt, sondern als kollektiver Lernprozess verankert.
Architektonisch entwickelt sich der schlanke Holzbau aus der bestehenden Tribüne. Das semitransparente Photovoltaikdach überspannt die Anlage als energetischer Motor und versorgt über Speicher und Wärmepumpe sowohl den Betrieb als auch die neuen E-Mobilitäts-Möglichkeiten. Das klar organisierte Raumprogramm mit Tribüne, Gastronomie, Garderoben und Trainingsräumen verbindet Funktionalität mit robuster Materialisierung und langfristiger Anpassungsfähigkeit.
Als Fussballcampus im Lerchenfeldquartier wird die neue Waldeck zu einem öffentlichen Begegnungsort mit Vorbildcharakter. Vision 2030 steht exemplarisch für eine neue Generation von Sportinfrastruktur, die ökologische Verantwortung, soziale Teilhabe und wirtschaftliche Tragfähigkeit durch einen innovativen Planungs- und Bauprozess vereint.














Texte Davos Kriterien (Selbstevaluation)
Gouvernanz
Die Vision 2030 basiert auf einer breit abgestützten Zusammenarbeit zwischen Verein, Stadt Thun, Fachplanenden, Energieversorgern, Sponsoren und Mitgliedern. Partizipation, Fronarbeit und Materialspenden sind bewusst Teil des Prozesses. Diese kooperative Projektentwicklung fördert Transparenz, Identifikation, Verantwortung und langfristige Pflege der Anlage.
Funktionalität
Die kompakte Stadionbaute vereint Tribüne, Garderoben, Gastronomie, Trainings- und Theorieräume in einer klar strukturierten Organisation. Kurze Wege, barrierefreie Erschliessung, robuste Materialien und flexible Nutzungen gewährleisten einen langlebigen Betrieb und machen die Waldeck zu einem zeitgemässen Begegnungs-, Ausbildungs- und Veranstaltungsort.
Umwelt
Re-use von Bestandsbauteilen, Holzbau, PV-Dach mit Speicher, Wärmepumpe und reduzierte Bodenversiegelung senken graue Energie und Betriebsemissionen deutlich. Nachhaltige Mobilität, energieeffiziente Gebäudetechnik und ressourcenschonende Bauweisen machen das Stadion zu einem Leuchtturmprojekt für kreislaufgerechtes Bauen im Sportbereich.
Wirtschaft
Wiederverwendung von Bauteilen, Fronarbeit und langlebige Konstruktionen reduzieren Investitions- und Lebenszykluskosten. Eigenstromproduktion, Gastronomieeinnahmen und breite Unterstützung durch Sponsoren sichern die wirtschaftliche Tragfähigkeit. Die Anlage stärkt den Standort langfristig und schafft Mehrwert für Verein, Quartier und Stadt.
Vielfalt
Die Sportanlage richtet sich an Junioren, Breitensport, Zuschauerinnen, Gastronomiegäste und das Quartier. Tribüne, Terrasse und Restaurant schaffen Orte der Begegnung jenseits des Spielbetriebs. Die Mischung aus Sport, Ausbildung und Öffentlichkeit fördert soziale Durchmischung und eine lebendige Nutzung während des ganzen Jahres.
Kontext
Der schlanke Baukörper entlang des Spielfelds ordnet das heterogene Umfeld und integriert bestehende Tribünenteile in eine neue Gesamtstruktur. Die Weiterentwicklung aus dem Bestand respektiert Geschichte und Massstab der Anlage und stärkt die räumliche Kohärenz der Sportanlagen Waldeck im städtischen Kontext Thuns.
Genius Loci
Die starke Einbindung des Vereins, die Wiederverwendung vorhandener Bauteile und die Ausrichtung als Fussballcampus verleihen dem Ort eine neue Identität. Die Waldeck wird zum emotional verankerten Treffpunkt im Quartier und zum sichtbaren Symbol für gemeinschaftliches Engagement und nachhaltige Sportkultur.
Schönheit
Die klare Linearität des Baukörpers, das leichte, semitransparente PV-Dach und die robuste Materialisierung aus Holz, Metall und Beton erzeugen eine prägnante architektonische Erscheinung. Sichtbare Konstruktion und funktionale Eleganz transformieren Infrastruktur in ein identitätsstiftendes öffentliches Bauwerk.
Eigenschaften
Ort
Thun
Baukategorie (SIA 102)
Freizeit, Sport und Erholung
Art der Aufgabe
Umbau
Art des Verfahrens
Direktauftrag
Baukosten in CHF (SIA 416)
6.85 Mio
Geschossfläche in m² (SIA 416)
1'425
Planung
2019 → 2025
Fertigstellung
2020 → 2025
Inbetriebnahme
2030
Einreichende | Projektbeteiligte