...
Gässli 5

Copyright: Rory Gardiner
Die Geschichte von Gässli5 beginnt mit einem Inserat in der Dorfzeitung: Ein historischer Strickbau steht für einen Franken zum Verkauf, mit der Auflage, das Haus mitzunehmen. Viele vergleichbare Bauten sind Abbruch oder tiefgreifenden Sanierungen zum Opfer gefallen. Nach jahrzehntelangem Leerstand blieb dieses Haus jedoch in einem aussergewöhnlich authentischen Zustand.
Gemeinsam mit einer Gruppe von Einheimischen wurden Möglichkeiten gesucht, das Gebäude als Zeitzeugen zu erhalten. Untersuchungen am Bestand und eine dendrochronologische Analyse datierten den Kernbau auf das Jahr 1666.
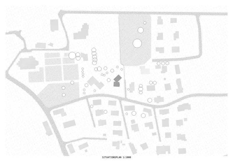
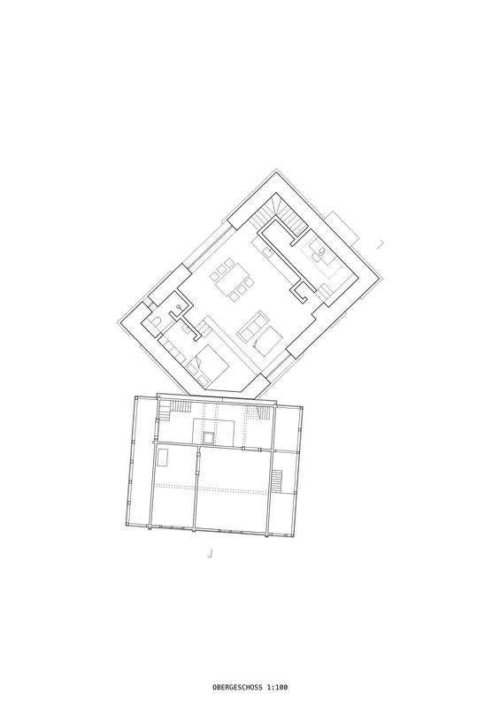
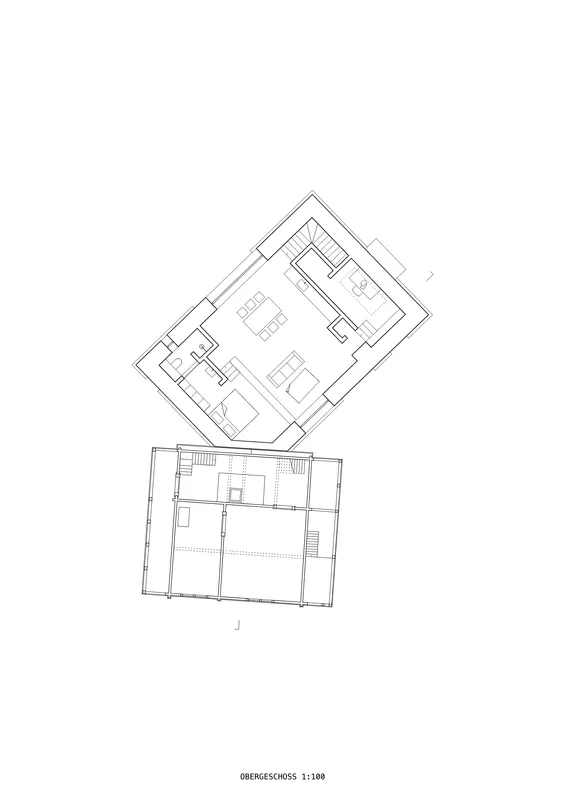
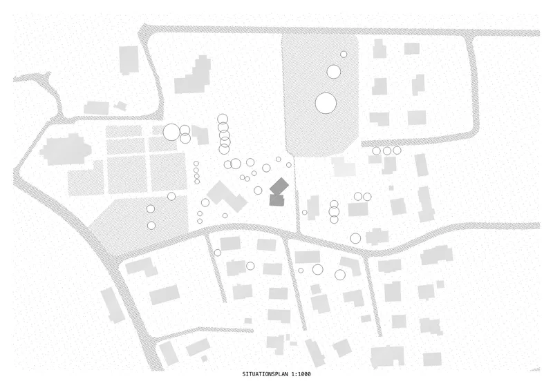
Um das Gässli in seiner ursprünglichen Einfachheit zu bewahren und dennoch eine zeitgemässe Nutzung zu ermöglichen, wurde das Haus Balken für Balken rückgebaut und rund 500 Meter weiter östlich wieder aufgebaut. Fehlende oder beschädigte Bauteile stammen aus anderen Abbruchobjekten im Dorf und führen die lokale Baugeschichte weiter. Der Strickbau bleibt bewusst ungedämmt und kann in unterschiedlichen Konfigurationen mit dem Neubau als Drei-Jahreszeiten-Haus genutzt werden.
Ergänzt wird das historische Haus durch einen Neubau aus Stampflehm, eingebettet in einen neu angelegten Permakulturgarten. Die Erweiterung um zwei grosse, überhohe Räume erlaubt eine flexible, zeitgemässe Nutzung in Kombination mit dem Altbau. Der Neubau übernimmt die notwendigen infrastrukturellen Anforderungen, sodass der Bestand ohne tiefgreifende Eingriffe erhalten bleibt.
Das neue Haus wird aus nachwachsenden Rohstoffen erstellt. Eine bewusste Reduktion auf das einfache Bauen sowie die Rezyklierbarkeit der Baustoffe stehen im Vordergrund. Mit tragenden Stampflehmwänden, Hanfdämmung und rezykliertem Innenputz bildet der massive Baukörper einen klaren Kontrast zum Holzbau und tritt als eigenständiges Gebäude hinter dem Gässli in Erscheinung.
Heute bilden Alt- und Neubau gemeinsam das Zentrum eines essbaren Waldgartens. Als Vereinshaus und Gewerberaum ist das Ensemble fest im Dorf verankert.
Gemeinsam mit einer Gruppe von Einheimischen wurden Möglichkeiten gesucht, das Gebäude als Zeitzeugen zu erhalten. Untersuchungen am Bestand und eine dendrochronologische Analyse datierten den Kernbau auf das Jahr 1666.
Um das Gässli in seiner ursprünglichen Einfachheit zu bewahren und dennoch eine zeitgemässe Nutzung zu ermöglichen, wurde das Haus Balken für Balken rückgebaut und rund 500 Meter weiter östlich wieder aufgebaut. Fehlende oder beschädigte Bauteile stammen aus anderen Abbruchobjekten im Dorf und führen die lokale Baugeschichte weiter. Der Strickbau bleibt bewusst ungedämmt und kann in unterschiedlichen Konfigurationen mit dem Neubau als Drei-Jahreszeiten-Haus genutzt werden.
Ergänzt wird das historische Haus durch einen Neubau aus Stampflehm, eingebettet in einen neu angelegten Permakulturgarten. Die Erweiterung um zwei grosse, überhohe Räume erlaubt eine flexible, zeitgemässe Nutzung in Kombination mit dem Altbau. Der Neubau übernimmt die notwendigen infrastrukturellen Anforderungen, sodass der Bestand ohne tiefgreifende Eingriffe erhalten bleibt.
Das neue Haus wird aus nachwachsenden Rohstoffen erstellt. Eine bewusste Reduktion auf das einfache Bauen sowie die Rezyklierbarkeit der Baustoffe stehen im Vordergrund. Mit tragenden Stampflehmwänden, Hanfdämmung und rezykliertem Innenputz bildet der massive Baukörper einen klaren Kontrast zum Holzbau und tritt als eigenständiges Gebäude hinter dem Gässli in Erscheinung.
Heute bilden Alt- und Neubau gemeinsam das Zentrum eines essbaren Waldgartens. Als Vereinshaus und Gewerberaum ist das Ensemble fest im Dorf verankert.












Copyright für die Fotografien: Rory Gardiner








Copyright für die Pläne / Schemata / Grafiken: Allen + Crippa
Texte Davos Kriterien (Selbstevaluation)
Gouvernanz
Zusammen mit einer lokalen Arbeitsgruppe aus Handwerkerinnen, Historikerinnen und Lehrpersonen wurde das Projekt initiiert, um das Haus vor dem drohenden Abbruch zu bewahren. Nach dem Verlust des Schutzstatus muss das Gebäude am ursprünglichen Standort weichen. Eine Person aus der Arbeitsgruppe stellte ein Grundstück zur Verfügung, um am neuen Ort ein Vereinshaus in einem Permakulturgarten zu schaffen. Die gemeinsam entwickelte Translokation sichert den Erhalt dieses Zeitzeugen.
Funktionalität
Das Konzept basiert auf der ergänzenden Nutzung zweier eigenständiger Gebäude, die gemeinsam das Zentrum eines essbaren Waldgartens bilden. Der Neubau bietet zwei überhohe, flexibel nutzbare Räume für die Verarbeitung der Ernte sowie für Bildungsangebote und übernimmt die notwendigen funktionalen und technischen Anforderungen. Dadurch bleibt das historische Haus in seiner strukturellen Einfachheit erhalten, ungedämmt und ohne tiefe Eingriffe als drei Jahreszeiten Haus weiter nutzbar.
Umwelt
Nebst der Translokation verfolgt auch der Neubau den Ansatz, die Emissionen beim Bauen radikal zu reduzieren und besteht aus tragenden Stampflehmwänden und unverleimten Holzbalkendecken. Hanfkalk dient der Wärmedämmung, Kalkputz aus rezykliertem Ziegelmehl prägt das Innere. Böden aus lokalem Stampflehm und roher Eiche folgen der sortenreinen Trennung. Das Haus ist konsequent aus nachwachsenden, rückbaubaren Materialien gebaut und vollständig in den Stoffkreislauf rückführbar.
Wirtschaft
Die Bauherrschaft verfolgt eine ganzheitliche, nachhaltige Perspektive und geht achtsam mit Ressourcen, Boden, Natur und Kapital um. Die Translokation mit experimentellem Lehmbau steht exemplarisch für diese Haltung: Trotz höherer Komplexität und fehlender Kostenvorteile gegenüber konventioneller Bauweise wurde bewusst in den langfristigen Erhalt von baukulturellem Erbe investiert. Wiederverwendung und langlebige Materialien fördern ressourceneffiziente Lebenszyklen statt kurzfristiger Rendite.
Vielfalt
Als Vereinshaus mit offenem Programm verbindet das Gässli5 unterschiedliche Nutzungen und Personengruppen und wird zu einem wichtigen Ort im Dorf. Gartenarbeit, Kurse, Veranstaltungen und gemeinschaftliche Aktivitäten überlagern sich und schaffen einen lebendigen Ort des Austauschs und des Lernens. Die räumliche Einfachheit der beiden Häuser, im Erdgeschoss verbunden und ergänzt durch vielfältige Sitz- und Gartenplätze, unterstützt die Aneignung und macht Vielfalt im Alltag erlebbar.
Kontext
Das Projekt nimmt den 350-jährigen Strickbau als Ausgangspunkt des Entwurfs. Seine Konstruktion, Materialität und Massstäblichkeit erzählen die Baugeschichte des Ortes und bleiben durch die Translokation lesbar. Der Neubau ist als Annex konzipiert, greift lokale Bautraditionen auf und interpretiert sie zeitgenössisch weiter. So entsteht ein Ensemble, das frühere Nutzungen respektiert und den Kontext nicht nachahmt, sondern fortschreibt. Am Bestand wird selbstverständlich weitergebaut.
Genius Loci
Gässli5 stärkt den Genius Loci durch den behutsamen Umgang mit bestehender Bausubstanz und deren Integration in neue Nutzungsketten. Der Strickbau bleibt als Zeitzeuge erhalten, während der Lehmbau lokale Bauweisen zeitgenössisch weiterdenkt. Die Versprünge der Fassade machen den Herstellungsprozess und die Materialität des Lehms ablesbar und knüpfen an das ortstypische Bauen an. Gemeinsam schaffen die Häuser einen emotionalen, identitätsstiftenden Dialog zwischen Geschichte und Gegenwart.
Schönheit
Das Projekt versteht sich als Statement gegen Abriss und Verschwendung und als Plädoyer für die Wiederverwertbarkeit bestehender Bausubstanz. Die Schönheit des Projekts entsteht aus dem Garten, der Ehrlichkeit der Konstruktion, der sichtbaren Materialität und dem Mut, gängige Normen zu hinterfragen. Der experimentelle Umgang mit dem Bestand und dem Lehmbau verschiebt gängige Standards und macht die Reduktion auf das wesentliche als ästhetische Qualität erfahrbar.
Eigenschaften
Ort
Grabs, SG
Baukategorie (SIA 102)
Wohnen
Art der Aufgabe
Erweiterung
Art des Verfahrens
Direktauftrag
Baukosten in CHF (SIA 416)
Geschossfläche in m² (SIA 416)
474
Planung
2021 → 2023
Fertigstellung
2023 → 2025
Inbetriebnahme
2025
Einreichende | Projektbeteiligte
Bauingenieurwesen
Vorfabrikation
Bauphysik
Andere
HLKS-Planung
HLKS-Planung
Holzbau