...
kPEB-Baudenkmal Tösstalstrasse 10

Copyright: Giuseppe Fent AG
Das denkmalgeschützte kPEB-Baudenkmal mit Baujahr 1650 befindet sich in der Altstadt von Winterthur. Der Wunsch der Bauherrschaft war es, das Gebäude in die nächste Generation zu führen und gleichzeitig die ursprünglichen architektonischen Qualitäten zu bewahren.
Zur Strassenseite hin bleibt das Erscheinungsbild aus der Zeit der Entstehung erhalten und trägt weiterhin zur Identität des historischen Stadtgefüges bei. Im Innenhof hingegen wurde der bestehende Laubengang vollständig erneuert und mit einem Wintergarten ergänzt, der eine zeitgemässe, solaraktive Fassade hat. Durch diesen gezielten Eingriff wurde die wertvolle Struktur des Altstadthauses geschützt und zugleich ein Raum geschaffen, der die Wohnungen erweitert und zudem die Funktion bietet, die gesamte Energie für das Haus zu gewinnen. Die Fassade verleiht dem Innenhof neues Leben und schafft eine ruhige, ausgewogene Atmosphäre – abseits und doch im Herzen der lebendigen Winterthurer Altstadt. Besonders ist der überraschende Effekt, den der Zugang zum Hof auslöst. Man findet sich unerwartet in einer modernen Realität wieder, die eine zeitgemässe Antwort auf die Herausforderungen des Klimawandels liefert und dennoch den traditionellen Charakter des Bestands wertschätzt.
Die Innenräume der Wohnungen wurden umfassend saniert, wobei bestehende Elemente wie Einbauschränke, Kanonenöfen und einzigartige Holzböden sorgfältig wiederverwendet wurden. So bleibt die Seele eines traditionellen Altstadtbaus im ganzen Haus spürbar. Heute steht die Tösstalstrasse 10 für die Vereinbarkeit von nachhaltigem und traditionsbewusstem Wohnen in der Altstadt – zeitlos, zurückhaltend und ohne überflüssigen Prunk.
Zur Strassenseite hin bleibt das Erscheinungsbild aus der Zeit der Entstehung erhalten und trägt weiterhin zur Identität des historischen Stadtgefüges bei. Im Innenhof hingegen wurde der bestehende Laubengang vollständig erneuert und mit einem Wintergarten ergänzt, der eine zeitgemässe, solaraktive Fassade hat. Durch diesen gezielten Eingriff wurde die wertvolle Struktur des Altstadthauses geschützt und zugleich ein Raum geschaffen, der die Wohnungen erweitert und zudem die Funktion bietet, die gesamte Energie für das Haus zu gewinnen. Die Fassade verleiht dem Innenhof neues Leben und schafft eine ruhige, ausgewogene Atmosphäre – abseits und doch im Herzen der lebendigen Winterthurer Altstadt. Besonders ist der überraschende Effekt, den der Zugang zum Hof auslöst. Man findet sich unerwartet in einer modernen Realität wieder, die eine zeitgemässe Antwort auf die Herausforderungen des Klimawandels liefert und dennoch den traditionellen Charakter des Bestands wertschätzt.
Die Innenräume der Wohnungen wurden umfassend saniert, wobei bestehende Elemente wie Einbauschränke, Kanonenöfen und einzigartige Holzböden sorgfältig wiederverwendet wurden. So bleibt die Seele eines traditionellen Altstadtbaus im ganzen Haus spürbar. Heute steht die Tösstalstrasse 10 für die Vereinbarkeit von nachhaltigem und traditionsbewusstem Wohnen in der Altstadt – zeitlos, zurückhaltend und ohne überflüssigen Prunk.












Copyright für die Fotografien: Giuseppe Fent AG












Copyright für die Pläne / Schemata / Grafiken: Giuseppe Fent AG
Texte Davos Kriterien (Selbstevaluation)
Gouvernanz
Möglich war das Pilotprojekt dank einer mutigen und überzeugten Bauherrschaft. Sie sind seit Mitte der 1980er-Jahre im Besitz des Altstadthauses und haben selber über 25 Jahre dort gelebt. Das kPEB-Baudenkmal verfolgt klare Ziele und übernimmt eine langfristige Verantwortung gegenüber der Umwelt und Gesellschaft. Die Sanierung zeigt, wie ein sorgfältiger Umgang mit dem Bestand dazu dienen kann, ein beinahe 400 Jahre altes Altstadthaus fit für die kommenden Herausforderungen zu machen.
Funktionalität
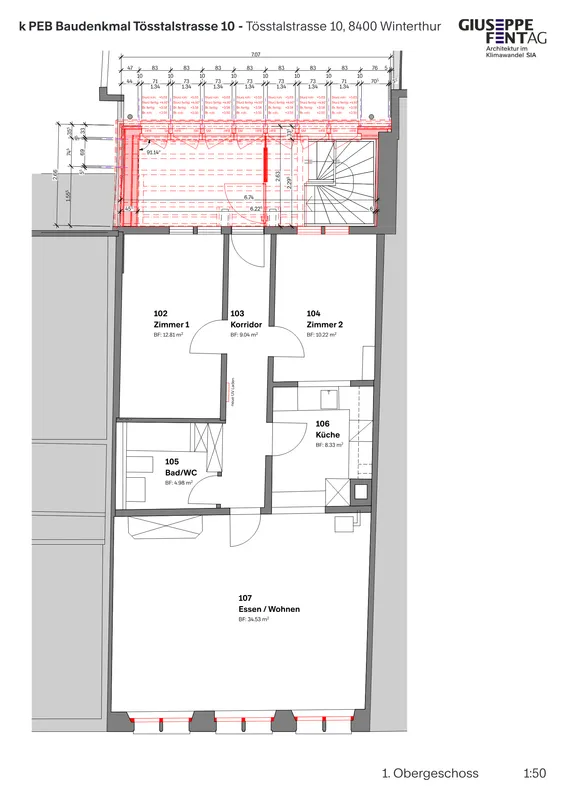
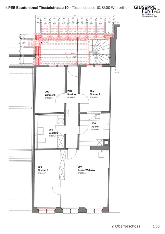
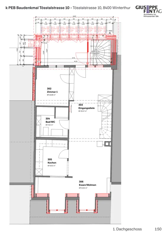
Die Wohnungen wurden mit neuen Fenstern ausgestattet und die möglichen Bauteilflächen wurden optimal gedämmt, um ein angenehmes und behagliches Raumgefühl zu erzeugen. Durch den Wintergarten in Holzbauweise zum Hof wurde zusätzlicher Wohnraum für die einzelnen Wohnungen geschaffen. Das lichtdurchflutete Wohnzimmer richtet sich zur lebendigen Gasse hin, während sich die Zimmer gegen den ruhigen Hof orientieren. Die Funktionalität der Altstadtwohnung wurde damit erhalten und gestärkt.
Umwelt
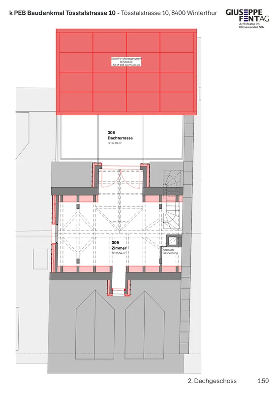
Neben der denkmalgeschützten bestehenden Struktur motiviert auch die ökologische Nachhaltigkeit dazu, sorgsam mit dem Bestand umzugehen. Durch die Weiterverwendung bestehender Strukturen und Materialien wird ein Grossteil der grauen Energie eingespart. Durch den Wintergarten, der thermische Energie gewinnt, und die Photovoltaikanlage auf dem neuen Dach wird die Energie für das Haus gewonnen. Eine Luftwärmepumpe stellt die benötigte Energie für Heizung und Warmwasser effizient zur Verfügung.
Wirtschaft
Das Altstadthaus an der Tösstalstrasse 10 nimmt eine ganzheitliche, nachhaltige Haltung ein und geht mit den Ressourcen Bestand, Material, Energie, Umwelt und Kapital verantwortungsvoll um. Es zeigt exemplarisch eine sorgfältige Abwägung dieser Werte und wie durch Mut und Offenheit ein wertvolles, fast 400 Jahre altes Haus den zukünftigen Herausforderungen begegnen kann und einen wertvollen Beitrag in die Zukunft leistet.
Vielfalt
Durch die verschiedenen Blickbezüge im Haus entstehen immer wieder spontane Begegnungen, ohne die private Wohnqualität zu beeinträchtigen. Die unterschiedlichen Wohnungstypen lassen eine soziale Durchmischung zu. Durch das Ladenlokal im Erdgeschoss öffnet sich ein kleiner Teil des Hauses für Kundinnen und Kunden.
Kontext
Die Sanierung stützt sich auf die bestehenden Elemente und Qualitäten des Hauses und des Orts. Sie respektiert Bestehendes und nutzt es weiter. Nur wenige Elemente werden neu interpretiert und in das Gefüge ergänzt. Das neue Gesamtkonzept des Altstadthauses ist zeitgemäss und traditionell.
Genius Loci
Gerade durch den sorgfältigen Umgang mit der bestehenden Bausubstanz und der Geschichte ist das Altstadthaus weiterhin Identitätsstiftend für den Ort und die Altstadt. Durch die Sanierung mit der Erweiterung im Hof strickt das Haus seine fast 400 Jahre alte Geschichte weiter und bleibt auch in Zukunft ein Ort der sich durch hohe Wohn- und Aufenthaltsqualität auszeichnet.
Schönheit
Das Projekt zeigt, dass ökologische Nachhaltigkeit nicht generisch gedacht werden sollte, sondern immer den Ort und die Qualitäten des bestehenden Objekts berücksichtigen muss, damit gute Architektur entstehen kann. Die architektonische Wirkung des Baudenkmals zeichnet sich durch Zurückhaltung, Respekt und Präzision aus. Traditionelle Elemente, feine Details und wenige gezielte Eingriffe prägen das Erscheinungsbild und den Charakter des Hauses.
Eigenschaften
Ort
8400 Winterthur
Baukategorie (SIA 102)
Wohnen
Art der Aufgabe
Sanierung
Art des Verfahrens
Direktauftrag
Baukosten in CHF (SIA 416)
Keine Angabe
Geschossfläche in m² (SIA 416)
454
Planung
2019 → 2024
Fertigstellung
2024 → 2025
Inbetriebnahme
2025
Einreichende | Projektbeteiligte
HLKS-Planung
Lucido solar AG
Fassadenplanung
Giuseppe Fent AG
Bauingenieurwesen
Bauphysik
Holzbau