...
Immeuble à usage mixte à Forel (Lavaux)

Copyright: Rasmus Norlander
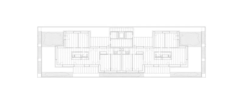
Immeuble à usage mixte situé à Forel (Lavaux) dans la zone d’activité à la lisière de la zone agricole. Le projet superpose des locaux industriels organisés sur les deux premiers niveaux et deux logements en attique.
La structure des deux premiers niveaux est pensée pour donner un maximum de flexibilité pour l’appropriation et le regroupement des locaux selon les besoins des occupants. Pour cela, le bâtiment n’a pas de cage d’escalier pour les appartements, car celle-ci couperait les niveaux en deux.
Un ascenseur commun, accessible directement de l’extérieur, donne accès aux deux appartements qui disposent d’escaliers extérieurs privatifs placés aux deux extrémités du bâtiment.
Les appartements sont organisés autour d’un noyau central regroupant la salle de bain commune et les meubles de cuisine. La circulation peut ainsi se faire soit côté nord, à travers une distribution qui relie l’ensemble de l’appartement, soit côté sud à travers les espaces communs, la cuisine servant de pivot entre la salle à manger et le salon.
L’appartement étant pensé comme s’il était de plain-pied bien qu’étant situé à dix mètres du sol, les espaces extérieurs ont une grande importance dans l’organisation de la typologie. Ainsi, la salle à manger s’ouvre à la fois sur une terrasse côté nord qui sert aussi d’espace d’entrée, et une autre côté sud sur laquelle donne la cuisine et le salon.
La structure des deux premiers niveaux est pensée pour donner un maximum de flexibilité pour l’appropriation et le regroupement des locaux selon les besoins des occupants. Pour cela, le bâtiment n’a pas de cage d’escalier pour les appartements, car celle-ci couperait les niveaux en deux.
Un ascenseur commun, accessible directement de l’extérieur, donne accès aux deux appartements qui disposent d’escaliers extérieurs privatifs placés aux deux extrémités du bâtiment.
Les appartements sont organisés autour d’un noyau central regroupant la salle de bain commune et les meubles de cuisine. La circulation peut ainsi se faire soit côté nord, à travers une distribution qui relie l’ensemble de l’appartement, soit côté sud à travers les espaces communs, la cuisine servant de pivot entre la salle à manger et le salon.
L’appartement étant pensé comme s’il était de plain-pied bien qu’étant situé à dix mètres du sol, les espaces extérieurs ont une grande importance dans l’organisation de la typologie. Ainsi, la salle à manger s’ouvre à la fois sur une terrasse côté nord qui sert aussi d’espace d’entrée, et une autre côté sud sur laquelle donne la cuisine et le salon.












Copyright für die Fotografien: Rasmus Norlander







Copyright für die Pläne / Schemata / Grafiken: Samir Alaoui Architectes
Texte Davos Kriterien (Selbstevaluation)
Gouvernanz
Le projet montre une gouvernance de qualité par une implication claire des parties prenantes et une conduite du processus rigoureuse. Les usages mixtes ont été pensés pour répondre aux besoins tant des acteurs économiques locaux que des futurs habitants. La flexibilité structurelle des niveaux industriels illustre une gestion adaptée aux dynamiques changeantes, favorisant une appropriation progressive par ses usagers.
Funktionalität
L’organisation spatiale du bâtiment répond précisément à sa destination mixte. Les locaux industriels sur deux niveaux sont conçus pour être modulables et adaptables, tandis que les logements en attique offrent des circulations fluides, confortables et saines. L’accès par ascenseur extérieur commun et les escaliers privatifs améliorent la sécurité, l’accessibilité et le confort d’usage pour toutes les catégories d’utilisateurs.
Umwelt
Le projet intègre une approche écologique et durable : la volumétrie compacte limite l’emprise au sol, tandis que les toitures partiellement végétalisées favorisent la biodiversité et régulent les eaux pluviales. La structure flexible permet une durabilité d’usage, réduisant les besoins de transformations futures. L’architecture dialogue ainsi avec le paysage rural, combinant efficacité environnementale et intégration harmonieuse.
Wirtschaft
Le projet adopte deux systèmes structurels adaptés aux exigences économiques et techniques de chaque programme. Les niveaux industriels sont réalisés en béton afin de permettre de grandes portées et des charges utiles élevées, optimisant la flexibilité d’exploitation. Les appartements en attique sont construits en éléments préfabriqués en bois, indépendants de la structure inférieure, ce qui simplifie le chantier, réduit les coûts et confère à chaque programme une identité matérielle propre.
Vielfalt
La mixité des usages favorise une diversité fonctionnelle et sociale : espaces productifs et espaces résidentiels coexistent sans rupture. Cette juxtaposition enrichit la vie du lieu, invite à la coopération entre acteurs différents et ouvre le bâtiment à une pluralité d’usages, d’échelles et de temporalités. C’est un catalyseur de pratiques variées et de rencontres intersectorielles.
Kontext
Le projet s’inscrit avec finesse dans son environnement territorial et paysager : à la lisière de la zone d’activité et de la zone agricole, il établit une transition douce entre espaces productifs et paysage rural. La composition architecturale respecte l’échelle du lieu, tout en offrant une présence contemporaine. Cette lecture du contexte garantit une intégration urbaine et paysagère solide.
Genius Loci
Le projet s’ancre dans l’esprit du lieu par une réinterprétation contemporaine du langage agricole et industriel. Les façades en zinc rappellent les entrepôts voisins, la palette chromatique — bordeaux des éléments de ferblanterie et vert des champs et forêts — renforce le lien au site, tandis que les toitures végétalisées prolongent ce dialogue avec le paysage, créant une identité locale forte et respectueuse du contexte.
Schönheit
La beauté du projet réside dans la simplicité de son organisation, la clarté des lignes et la cohérence du parti architectural. Chaque élément, du traitement des façades à la distribution intérieure, participe à une esthétique raffinée et fonctionnelle. L’architecture se fait lisible, généreuse et engageante, produisant une expérience spatiale positive et durable pour ses habitants et ses visiteurs.
Eigenschaften
Ort
Forel (Lavaux)
Baukategorie (SIA 102)
Industrie und Gewerbe
Art der Aufgabe
Neubau
Art des Verfahrens
Direktauftrag
Baukosten in CHF (SIA 416)
4'620'000
Geschossfläche in m² (SIA 416)
1'643
Planung
2020 → 2022
Fertigstellung
2023 → 2025
Inbetriebnahme
2025
Einreichende | Projektbeteiligte
Bauherrschaft
Iremma sàrl
Bauingenieurwesen
Geologie/Geotechnik
Betonbau
Holzbau
Vorfabrikation
Fotografie
Andere
Andere