...
Ferme agro-urbaine de Bernex

Copyright: Verzone Woods Architectes
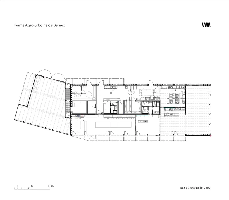
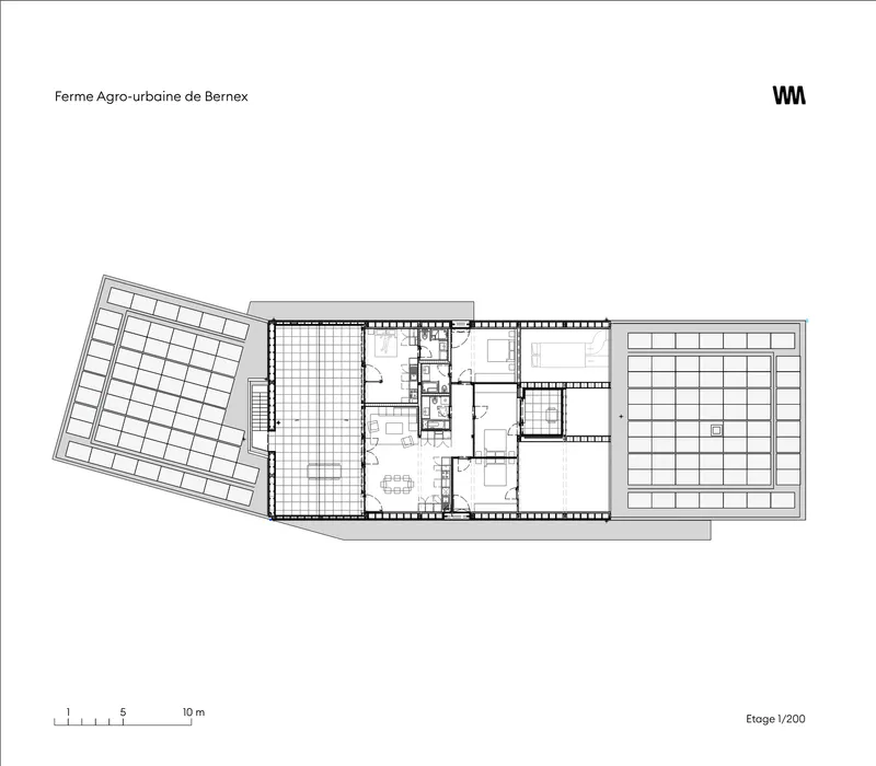
La ferme agro-urbaine constitue le cœur du parc agro-urbain de Bernex. À la fois vitrine des produits locaux et lieu de rencontre et de partage, elle réunit des espaces de production agricole, un marché, un lieu de restauration ainsi que des logements. Le programme comprend notamment une cuisine professionnelle, associée à des surfaces commerciales, un hangar pour les machines agricoles, un appartement et un studio de fonction, tous deux largement ouverts sur le paysage nourricier environnant. La ferme s’affirme ainsi comme un marqueur architectural et social, à l’interface entre production maraichère, pédagogie et lien avec le territoire.
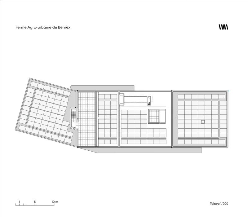
La structure porteuse du bâtiment est réalisée en bois, avec une dalle massive en bois complétée par un noyau central en briques de terre cuite. L’enveloppe du bâtiment - incluant les murs périphériques et la toiture - est entièrement isolée par des caissons de paille. Le remplissage de ces caissons a été effectué sur site dans le cadre d’un atelier participatif, renforçant la dimension sociale et pédagogique du projet.
La ferme agro-urbaine ne dispose pas de système de production de chaleur propre. La chaleur nécessaire au bâtiment est récupérée sur les groupes froids de la cuisine professionnelle, puis redistribuée à l’ensemble des espaces au moyen d’échangeurs thermiques dimensionnés à cet effet. Enfin, un champ solaire photovoltaïque recouvre l’intégralité de la toiture, garantissant l’autonomie électrique du bâtiment.
La structure porteuse du bâtiment est réalisée en bois, avec une dalle massive en bois complétée par un noyau central en briques de terre cuite. L’enveloppe du bâtiment - incluant les murs périphériques et la toiture - est entièrement isolée par des caissons de paille. Le remplissage de ces caissons a été effectué sur site dans le cadre d’un atelier participatif, renforçant la dimension sociale et pédagogique du projet.
La ferme agro-urbaine ne dispose pas de système de production de chaleur propre. La chaleur nécessaire au bâtiment est récupérée sur les groupes froids de la cuisine professionnelle, puis redistribuée à l’ensemble des espaces au moyen d’échangeurs thermiques dimensionnés à cet effet. Enfin, un champ solaire photovoltaïque recouvre l’intégralité de la toiture, garantissant l’autonomie électrique du bâtiment.












Copyright für die Fotografien: Verzone Woods Architectes & Joseph Jeanmart








Copyright für die Pläne / Schemata / Grafiken: Verzone Woods Architectes
Texte Davos Kriterien (Selbstevaluation)
Gouvernanz
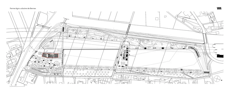
Le projet de la ferme de Bernex est né de la volonté de la commune de Bernex de répondre aux impacts majeurs de l’urbanisation sur son territoire agricole. Face à la perte d’environ 100 hectares de terres cultivées, Bernex s’est engagée dès 2012 aux côtés du canton, des agriculteurs et d’AgriGenève pour créer un projet exemplaire. Implantée au cœur de la césure verte, la ferme valorise l’agriculture locale et renforce le lien entre territoire, paysage et population.
Funktionalität
L’ensemble du bâtiment adopte une approche low tech en proposant une isolation en caissons de paille à la fois dans les murs périphériques et en toiture. La structure, avec sa trame porteuse et sa charpente en bois, s’inspire des typologies de constructions rurales.
Le système de chauffage est basé sur le principe de la récupération de chaleur des espaces de stockage froids de la cuisine professionnelle.
Enfin, les espaces intérieurs continus répondent à une demande d'usages modulables.
Le système de chauffage est basé sur le principe de la récupération de chaleur des espaces de stockage froids de la cuisine professionnelle.
Enfin, les espaces intérieurs continus répondent à une demande d'usages modulables.
Umwelt
La ferme a recherché, dans sa conception, la plus grande neutralité environnementale. Il s’agissait non seulement de réaliser un bâtiment affichant un haut niveau d’efficacité énergétique durant son exploitation, mais aussi de prendre en compte les externalités directes et indirectes induites par la construction et le démantèlement. Ainsi, l'isolation du bâtiment a été réalisée en paille, provenant de la commune, dans une ossature bois et avec enduits terre sur les murs intérieurs du restaurant.
Wirtschaft
Le développement du projet s’est fait en collaboration étroite entre le canton de Genève, la commune de Bernex et les agriculteurs de Bernex.
La participation financière de l'association des agriculteurs ainsi que le modèle économique, basé sur l'exploitation d'un marché de produits agricoles locaux et d'un restaurant, ont permis à la Commune de Bernex de financer la construction d'un tel bâtiment avec le support de subventions cantonales.
La participation financière de l'association des agriculteurs ainsi que le modèle économique, basé sur l'exploitation d'un marché de produits agricoles locaux et d'un restaurant, ont permis à la Commune de Bernex de financer la construction d'un tel bâtiment avec le support de subventions cantonales.
Vielfalt
La Ferme de Bernex rassemble sous un même toit un restaurant mettant à l’honneur le fruit des exploitations agricoles locales, un marché de producteurs de la région, un espace de conditionnement des récoltes issues du Parc des Molliers attenant, deux logements destinés aux acteurs du site ainsi qu’un hangar agricole. Cette diversité de fonctions crée une mixité d’usages visant à sensibiliser tout à chacun.e à l’importance d’une alimentation de proximité.
Kontext
L'emplacement de la ferme de Bernex a été retenu dans la zone réservée comme « césure verte », destinée à devenir un grand parc reliant l’Aire au Rhône. A ce titre, la réponse au concours intitulé « Parc agro-urbain, espaces publics et ouverts de Bernex-Confignon » lancé fin 2012 pour l’aménagement de ce parc, a posé l’agriculture urbaine comme activité centrale, en proposant des franges vivrières et des zones cultivées en interaction directe avec les zones de délassement.
Genius Loci
Exploitants et visiteurs trouvent sous un même toit les espaces répondant à leurs besoins. Les locaux dévoués à la production agricole et les espaces de conditionnement côtoient un marché et un restaurant offrant la possibilité d'acheter et de déguster des produits de proximité tout en servant d’outil didactique.
L'esprit du lieu, sous le signe du partage, offre donc la possibilité à tou.te.s de promouvoir et d'apprécier directement le travail de la terre et les plaisirs du goût.
L'esprit du lieu, sous le signe du partage, offre donc la possibilité à tou.te.s de promouvoir et d'apprécier directement le travail de la terre et les plaisirs du goût.
Schönheit
La Ferme de Bernex se distingue par un bâti dont la beauté naît de sa relation au paysage. Le parc des Molliers et les sommets jurassiens dressent le tableau à contempler depuis la salle de restaurant, baignée par la lumière du Nord. Sobre et mesurée, l'expression formelle de la Ferme de Bernex privilégie l’usage et la fonctionnalité, répondant à des besoins spécifiques. La façade Est présente ainsi la succession logique des espaces utiles que sont le hangar agricole, le marché et le restaurant
Eigenschaften
Ort
Parc des Molliers - Bernex
Baukategorie (SIA 102)
Weitere
Art der Aufgabe
Neubau
Art des Verfahrens
Wettbewerb
Beschaffungsform
Offenes Verfahren
Baukosten in CHF (SIA 416)
n.c.
Geschossfläche in m² (SIA 416)
1'010
Planung
2019 → 2023
Fertigstellung
2023 → 2025
Inbetriebnahme
2025
Einreichende | Projektbeteiligte
Bauherrschaft
Bauingenieurwesen
Bauphysik
Baubiologie
HLKS-Planung
HLKS-Planung
Elektroplanung
HLKS-Planung