...
Nido nel fienile

Copyright: Roberto Pellegrini
Il progetto ha visto la trasformazione in abitazione secondaria di un tipico edificio rurale, situato nell’insediamento iscritto nell’ISOS di Olivone-Solario, nell’alta valle di Blenio. L’edificio originario fungeva da stalla e fienile, ma era abbandonato da decenni in quanto non più consono alla sua funzione originaria.
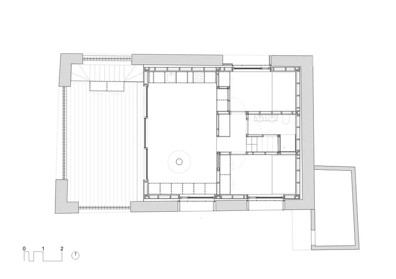
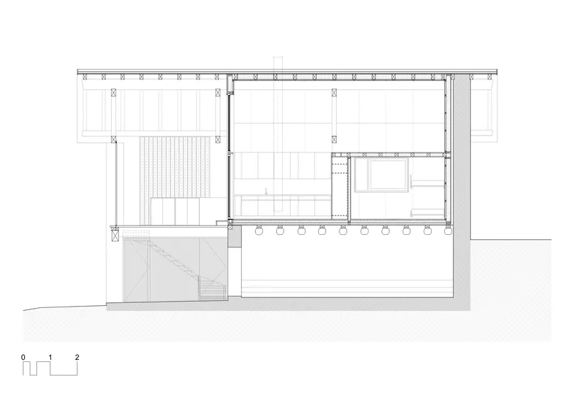
La sostanza storica è stata per quanto possibile conservata. La nuova struttura in legno è stata inserita nel manufatto originale e posata sulle grosse travi esistenti. Anche la tipica netta divisione tra stalla e fienile è stata mantenuta: il piano seminterrato (la stalla) è stato conservato integralmente (le grosse travi, i pavimenti, ma anche mangiatoie e abbeveratoi), mentre la parte superiore (il fienile) è stata trasformata in abitazione. Solo due terzi del volume del fienile sono però stati occupati dalla nuova struttura in legno: la parte anteriore, in corrispondenza del portico sottostante, è stata mantenuta quale spazio coperto esterno, dove ancora si respira pienamente l’atmosfera del fienile originario. I tamponamenti in tavole di legno originari sono stati reinterpretati quali elementi frangisole mobili, che permettono di chiudere l’edificio, oppure di aprirlo alla luce e al paesaggio. L'accesso all'abitazione avviene dal portico, grazie all'inserimento di una nuova scala in metallo, che si integra nell'insieme riprendendo il tema dei tamponamenti verticali.
La sostanza storica è stata per quanto possibile conservata. La nuova struttura in legno è stata inserita nel manufatto originale e posata sulle grosse travi esistenti. Anche la tipica netta divisione tra stalla e fienile è stata mantenuta: il piano seminterrato (la stalla) è stato conservato integralmente (le grosse travi, i pavimenti, ma anche mangiatoie e abbeveratoi), mentre la parte superiore (il fienile) è stata trasformata in abitazione. Solo due terzi del volume del fienile sono però stati occupati dalla nuova struttura in legno: la parte anteriore, in corrispondenza del portico sottostante, è stata mantenuta quale spazio coperto esterno, dove ancora si respira pienamente l’atmosfera del fienile originario. I tamponamenti in tavole di legno originari sono stati reinterpretati quali elementi frangisole mobili, che permettono di chiudere l’edificio, oppure di aprirlo alla luce e al paesaggio. L'accesso all'abitazione avviene dal portico, grazie all'inserimento di una nuova scala in metallo, che si integra nell'insieme riprendendo il tema dei tamponamenti verticali.









Copyright für die Fotografien: Roberto Pellegrini





Copyright für die Pläne / Schemata / Grafiken: Valentina Cima
Texte Davos Kriterien (Selbstevaluation)
Gouvernanz
Il progetto si è sviluppato fin dalle sue fasi iniziali grazie ad una stretta sinergia tra committenza, architetto ed artigiani locali. Grazie allo studio approfondito di ogni singolo dettaglio è stato possibile operare scelte coerenti che valorizzassero il patrimonio costruito esistente e le tecniche artigianali locali, adempiendo alle esigenze di confort e di budget della committenza.
Funktionalität
Il progetto ha permesso di conservare un edificio tipico del luogo dandogli una nuova funzione. Se l’aspetto esterno è rimasto pressoché invariato, all’interno l’ampiezza tipica dei fienili è stata reinterpretata per soddisfare le nuove esigenze. Gli elementi frangisole mobili permettono di aprire lo spazio sul paesaggio o di chiuderlo creando maggiore intimità. La scelta di rendere abitabile solo il piano superiore permette di evitare problematiche di infiltrazioni, umidità ascendente e radon.
Umwelt
La sostanza originale è stata per quanto possibile mantenuta.
La scelta di limitare il volume riscaldato e quella di eseguire un involucro più performante rispetto allo standard normativo richiesto, in combinazione con la termopompa aria-acqua e l’impianto fotovoltaico sul tetto, garantiscono un buon grado di autosufficienza energetica.
Gli elementi frangisole girevoli possono essere regolati singolarmente, così da proteggere gli ambienti interni dal sole e dal surriscaldamento.
La scelta di limitare il volume riscaldato e quella di eseguire un involucro più performante rispetto allo standard normativo richiesto, in combinazione con la termopompa aria-acqua e l’impianto fotovoltaico sul tetto, garantiscono un buon grado di autosufficienza energetica.
Gli elementi frangisole girevoli possono essere regolati singolarmente, così da proteggere gli ambienti interni dal sole e dal surriscaldamento.
Wirtschaft
La superficie abitabile isolata e riscaldata è stata ridotta al minino. Le piccole stanze, gli armadi integrati negli elementi costruttivi e i mobili eseguiti su misura permettono di sfruttare al meglio tutto lo spazio a disposizione. Nella stagione calda, grazie allo spazio coperto esterno, la superficie della zona giorno raddoppia e sfrutta l’intera ampiezza del fienile.
Grande attenzione è stata posta nella scelta delle ditte coinvolte, che sono per la quasi totalità domiciliate nella valle.
Grande attenzione è stata posta nella scelta delle ditte coinvolte, che sono per la quasi totalità domiciliate nella valle.
Vielfalt
La valorizzazione della diversità sta nel mantenimento dell’edificio esistente e del suo contesto, che sono unici e irripetibili e parte integrante dell’identità culturale della comunità.
L’intervento rispetta la cultura della costruzione del luogo anche per quanto riguarda gli spazi esterni, che sono mantenuti liberi da delimitazioni, come tipico dei nuclei rurali tradizionali caratterizzati dalla forte compenetrazione di spazio pubblico e spazio privato.
L’intervento rispetta la cultura della costruzione del luogo anche per quanto riguarda gli spazi esterni, che sono mantenuti liberi da delimitazioni, come tipico dei nuclei rurali tradizionali caratterizzati dalla forte compenetrazione di spazio pubblico e spazio privato.
Kontext
Il progetto mantiene per quanto possibile la sostanza esistente e interviene in modo coerente con materiali naturali e tipici del luogo. La reinterpretazione di una tipologia tradizionale non più utilizzabile per la sua funzione originaria e il suo adattamento alle nuove esigenze garantiscono la conservazione a lungo termine del manufatto e del suo contesto. La tipologia d’origine e il tessuto in cui è inserita sono così rispettati e rafforzati.
Genius Loci
L’intervento si inserisce in modo discreto nel contesto, garantendo un alto grado di accettazione da parte della comunità, che ne vede mantenuto il carattere identitario. Quando l’edificio è chiuso, il suo passato agricolo tradizionale è ancora pienamente dominante, quando invece è aperto lascia intravedere le sue nuove sorprendenti possibilità. Nell’insediamento alpino, che combatte contro lo spopolamento e l’abbandono, si insedia così nuova vita e si rafforza la cura per il patrimonio comune.
Schönheit
La bellezza era già presente nel luogo, andava solo conservata e adattata alle esigenze contemporanee. Con rispetto, coerenza e cura.
Eigenschaften
Ort
Blenio - Olivone
Baukategorie (SIA 102)
Wohnen
Art der Aufgabe
Umnutzung
Art des Verfahrens
Direktauftrag
Baukosten in CHF (SIA 416)
650'000.00
Geschossfläche in m² (SIA 416)
58.00 mq
Planung
2021 → 2023
Fertigstellung
2023 → 2024
Inbetriebnahme
2024
Einreichende | Projektbeteiligte
Architektur
Arch. Valentina Cima
Andere
Rodesino sagl
Andere
Sciaroni Carpenteria sagl
Andere
Oliva Falegnameria SA
Andere
Elettrobiasca e Valli SA
Andere
Thermonord SA
Andere
LDM Lavorazione del metallo sagl
Andere
Notari Edy SA
Andere
Ti-pingo Sagl
Andere
Rigiani Giardini
Andere
Liner SA
Fotografie
Roberto Pellegrini